For Sale By Auction | 12:00, 05 February 2025 | Lot 4

6 Merton Gardens, Farsley, Leeds , West Yorkshire LS28 5DZ

Sold

  • Semi-Detached House
  • 4 Bedrooms

Call the team on 0113 393 3482 for more information

Auction Date

Wed 05/02/2025

Auction Time

12:00

Auction Venue

Live Stream

Four bedroom, two bathroom semi detached property with driveway, garden and garage offered for sale via traditional auction. The property does require full renovation throughout, however would make a great project and would be a perfect family home when brought up to a modern standard. The location of the property is ideal to access both the popular local amenities in Farsley village but also to access commuting links to both Leeds and Bradford. The Leeds Ring Road and Pudsey railway station are both situated within close proximity. Please note the rear steel support column to the side extension is showing signs of wear and may require some remedial works. Buyers are advised to do their own research in this regard.

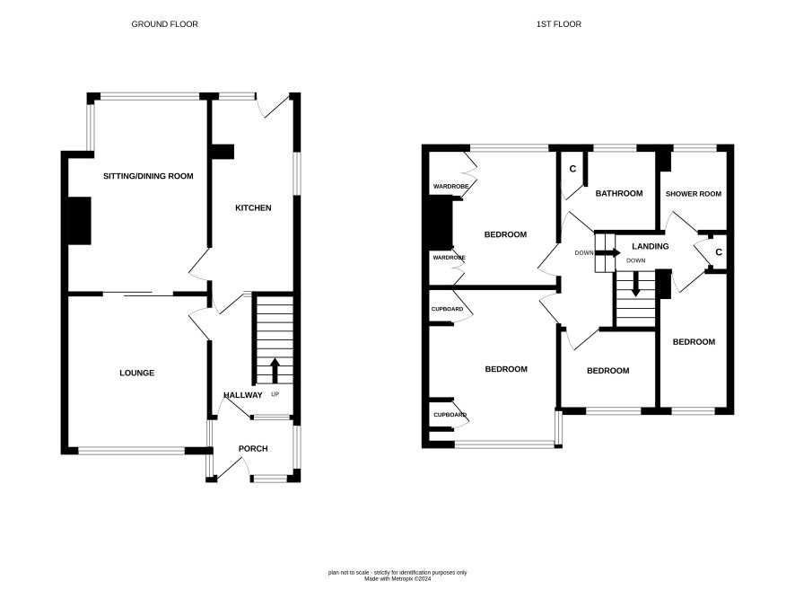
Ground Floor

Porch, lounge, dining room and kitchen.

First Floor

Four bedrooms, bathroom and shower room.

Externally

Rear garden, driveway and garage.

ADDITIONAL INFORMATION

Council Tax

Band C.

EPC Rating

D

Tenure

Freehold.

Chares & Payments

In addition to the deposit Administration Charge: 0.9% inc VAT of the purchase price subject to a minimum of £1,500 inc VAT. Searches £300 inc VAT

Important Notice to Prospective Buyers:

We draw your attention to the Special Conditions of Sale within the Legal Pack, referring to other charges in addition to the purchase price which may become payable. Such costs may include Search Fees, reimbursement of Sellers costs and Legal Fees, and Transfer Fees amongst others.

Additional Fees

Administration Charge - See above

Disbursements - Please see the legal pack for any disbursements listed that may become payable by the purchaser on completion.

View Larger Map

Disclaimer: The map preview provided above is for general guidance only and may not accurately reflect the exact location or surrounding buildings. Prospective buyers and interested parties are strongly advised to independently verify the precise location and surroundings before bidding.