For Sale By Auction | 12:00, 05 February 2025 | Lot 2

9 Foxcroft Close, Leeds, West Yorkshire LS6 3NT

Sold

  • Detached House
  • 6 Bedrooms

Call the team on 0113 393 3482 for more information

Auction Date

Wed 05/02/2025

Auction Time

12:00

Auction Venue

Live Stream

This substantial former office building is offered for sale via traditional auction. Whilst the property in its current form is deemed as commercial, we believe there is scope for residential conversion to a fantastic family home for a larger family, two houses, or a block of apartments subject to the passing of the relevant permissions. Located just behind Becketts Park, there is pedestrian access to Headingley through the park. There is also excellent road, bus and rail access to Leeds city centre and the surrounding areas. Local shops are a short walk away and larger shops can be found in vibrant central Headingley as well as nearby Burley and Kirkstall. Potential buyers should be aware the property has no vehicular access and the Council have also made us aware of an underground water leak within the property boundary which will be fixed at their expense. Please note: the successful purchaser will be required to pay 4% of the purchase price (minimum not less than £1,000) upon completion to Leeds City Council. Please refer to the legal pack for details.

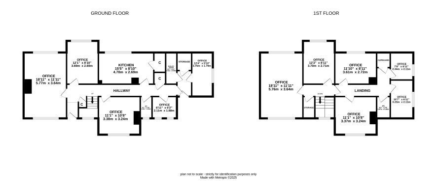
Ground Floor

Five offices, kitchen, WC, boiler room

First Floor

Five offices, bathroom and WC

Externally

Grounds to the front, side and rear

Additional Information

Council Tax

Leeds City Council

Commercial EPC Rating

F

Tenure

Freehold

Charges and Payments

In addition to the deposit Administration Charge: 0.9% inc VAT of the purchase price subject to a minimum of £1,500 inc VAT. Buyer's Premium: 1.8% (min £1,800 inc VAT).

Important Notice to Prospective Buyers:

We draw your attention to the Special Conditions of Sale within the Legal Pack, referring to other charges in addition to the purchase price which may become payable. Such costs may include Search Fees, reimbursement of Sellers costs and Legal Fees, and Transfer Fees amongst others.

Additional Fees

Administration Charge - See above

Disbursements - Please see the legal pack for any disbursements listed that may become payable by the purchaser on completion.

View Larger Map

Disclaimer: The map preview provided above is for general guidance only and may not accurately reflect the exact location or surrounding buildings. Prospective buyers and interested parties are strongly advised to independently verify the precise location and surroundings before bidding.