For Sale By Auction | 12:00, 05 February 2025 | Lot 17

10, 10A,B,C & D, Littlemoor Road, Pudsey, Leeds , West Yorkshire LS28 9EP

Sold

  • Block of Apartments

Call the team on 0113 393 3482 for more information

Auction Date

Wed 05/02/2025

Auction Time

12:00

Auction Venue

Live Stream

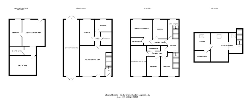
A block of five apartments sold with their freehold and leasehold titles, are offered for sale as one lot via traditional auction. The property consists of a studio, 2X one bed's 2X two bed's and a ground floor store area. Four of the apartments are currently tenanted generating a gross rental income of £28,800 per annum, with the final one bedroom apartment currently being vacant and requiring some internal work. The block would make a fantastic addition to a portfolio and offer a strong return when full occupied. The property is ideally located in the popular town of Pudsey with the many shops and amenities on offer just half a mile away. The property is being sold with the freehold title however in addition each apartment has its own lease and title number also. See below details: Lease length - 150 years from May 2016 Ground Rent - £150 per annum Service Charge - N/A. Please note: Auction House has been unable to inspect apartment 10.

Lower Ground Floor

One bedroom apartment.

Ground Floor

Two bedroom apartment, ground floor store, private door with stairway.

First Floor

Communal landing, two bedroom apartment, one bedroom apartment and private stairway.

Second Floor

Studio apartment.

ADDITIONAL INFORMATION

Council Tax

Band A.

EPC

Flat 10 - Rating E Flat 10a - Rating E Flat 10b - Rating C Flat 10c - Rating C Flat 10d - Rating D

Tenure

Leasehold.

Disclaimer

Any information in relation to the length of lease, service charge, ground rent and council tax has been confirmed by our sellers. We advise buyers to make their own enquiries through their solicitors to verify that the information provided is accurate and not been subject to any change.

Charges & Payments

In addition to the deposit Administration Charge: 0.9% inc VAT of the purchase price subject to a minimum of £1,500 inc VAT.

Important Notice to Prospective Buyers:

We draw your attention to the Special Conditions of Sale within the Legal Pack, referring to other charges in addition to the purchase price which may become payable. Such costs may include Search Fees, reimbursement of Sellers costs and Legal Fees, and Transfer Fees amongst others.

Additional Fees

Administration Charge - See above

Disbursements - Please see the legal pack for any disbursements listed that may become payable by the purchaser on completion.

View Larger Map

Disclaimer: The map preview provided above is for general guidance only and may not accurately reflect the exact location or surrounding buildings. Prospective buyers and interested parties are strongly advised to independently verify the precise location and surroundings before bidding.