For Sale By Auction | 12:00, 26 March 2025 | Lot 16

1 Bridge Road, Sutton-in-Craven, North Yorkshire BD20 7ES

Sold

  • Terraced House
  • 5 Bedrooms

Call the team on 0113 393 3482 for more information

Auction Date

Wed 26/03/2025

Auction Time

12:00

Auction Venue

Live Stream

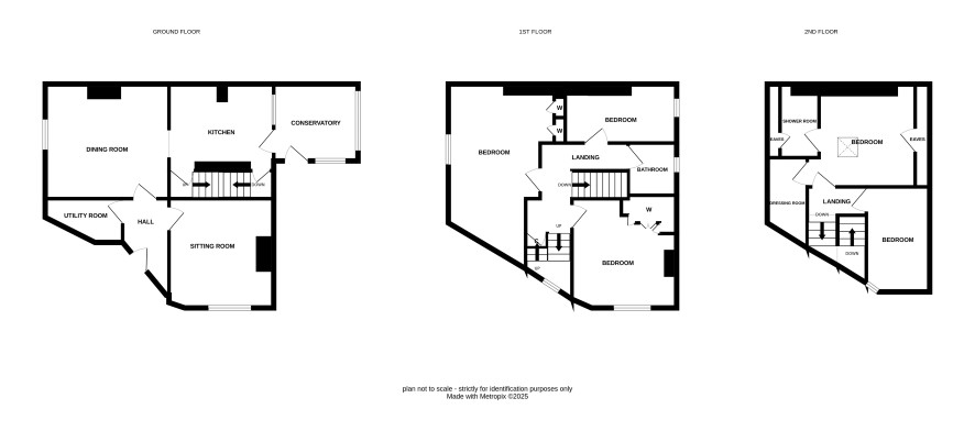
Standing at the end of a row of smaller terraced houses, this interesting property covers three levels with an impressive floor area of circa 1400 sq ft (plus a cellar and conservatory) providing larger than expected family accommodation including five bedrooms, two bathrooms and two reception rooms. The property would now benefit from internal refurbishment and it should be noted that some damp and cracking was noticed at the property during our inspection. Buyers should do their own research in this regard prior to bidding. The property is pleasantly located in a popular residential area within short walking distance of two pubs, country walks via Sutton Clough, a beautifully maintained park and a choice of sought after schools including South Craven Secondary in neighbouring Cross Hills.

Ground Floor

Living room, dining room, kitchen, utility/WC and conservatory.

First Floor

Three bedrooms and a bathroom

Second Floor

Two bedrooms, dressing room and shower room

Additional Information

Council Tax

North Yorkshire - Band C

EPC Rating

D

Tenure

Freehold

Charges and Payments

In addition to the deposit Administration Charge: 0.9% inc VAT of the purchase price subject to a minimum of £1,500 inc VAT. Searches £300 inc VAT

Important Notice to Prospective Buyers:

We draw your attention to the Special Conditions of Sale within the Legal Pack, referring to other charges in addition to the purchase price which may become payable. Such costs may include Search Fees, reimbursement of Sellers costs and Legal Fees, and Transfer Fees amongst others.

Additional Fees

Administration Charge - See above

Disbursements - Please see the legal pack for any disbursements listed that may become payable by the purchaser on completion.

View Larger Map

Disclaimer: The map preview provided above is for general guidance only and may not accurately reflect the exact location or surrounding buildings. Prospective buyers and interested parties are strongly advised to independently verify the precise location and surroundings before bidding.