For Sale By Auction | 12:00, 26 March 2025 | Lot 13

3 Smithy Moor Avenue, Stocksbridge, Sheffield, South Yorkshire S36 1FH

Sold

  • Semi-Detached Bungalow
  • 2 Bedrooms

Call the team on 0113 393 3482 for more information

Auction Date

Wed 26/03/2025

Auction Time

12:00

Auction Venue

Live Stream

This two bedroom semi detached dorma bungalow with off-street parking and extensive rear garden is offered for sale via traditional auction. The property does require full renovation throughout, but would make a great project or addition to a rental portfolio. Ideally located with excellent public transport links with connections to Sheffield city centre, Middlewood Tram Stop, Barnsley Interchange and motorway links.

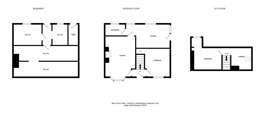
Lower Ground Floor

Cellar/wc.

Ground Floor

Lounge, kitchen, bedroom and bathroom.

First Floor

Bedroom.

Externally

Parking to the front with extensive garden to the rear.

ADDITIONAL INFORMATION

Council Tax

Band B.

EPC

D

Tenure

Freehold.

Charges & Payments

In addition to the deposit Administration Charge: 0.9% inc VAT of the purchase price subject to a minimum of £1,500 inc VAT.

Important Notice to Prospective Buyers:

We draw your attention to the Special Conditions of Sale within the Legal Pack, referring to other charges in addition to the purchase price which may become payable. Such costs may include Search Fees, reimbursement of Sellers costs and Legal Fees, and Transfer Fees amongst others.

Additional Fees

Administration Charge - See above

Disbursements - Please see the legal pack for any disbursements listed that may become payable by the purchaser on completion.

View Larger Map

Disclaimer: The map preview provided above is for general guidance only and may not accurately reflect the exact location or surrounding buildings. Prospective buyers and interested parties are strongly advised to independently verify the precise location and surroundings before bidding.