Withdrawn | Lot 30

58 Otley Old Road, Cookridge, Leeds , West Yorkshire LS16 6LQ

Withdrawn

  • Semi-Detached House
  • 3 Bedrooms

Call the team on 0113 393 3482 for more information

Auction Date

Wed 26/03/2025

Auction Time

12:00

Auction Venue

Live Stream

This is a three bedroom semi detached house with driveway, garage and gardens. It does require cosmetic upgrades throughout and would be ideal for someone wanting to add value to a property. The house is located in Cookridge, a popular suburb four miles north of Leeds city centre. There are desirable schools, Holt Park Active, Horsforth train station and local park a short drive away. We understand planning permission was granted in 2019 for the single storey extension (REF 19/00244/FU), however we have not had sight of any building regulation certification. Please note: a 14 day completion applies to this lot.

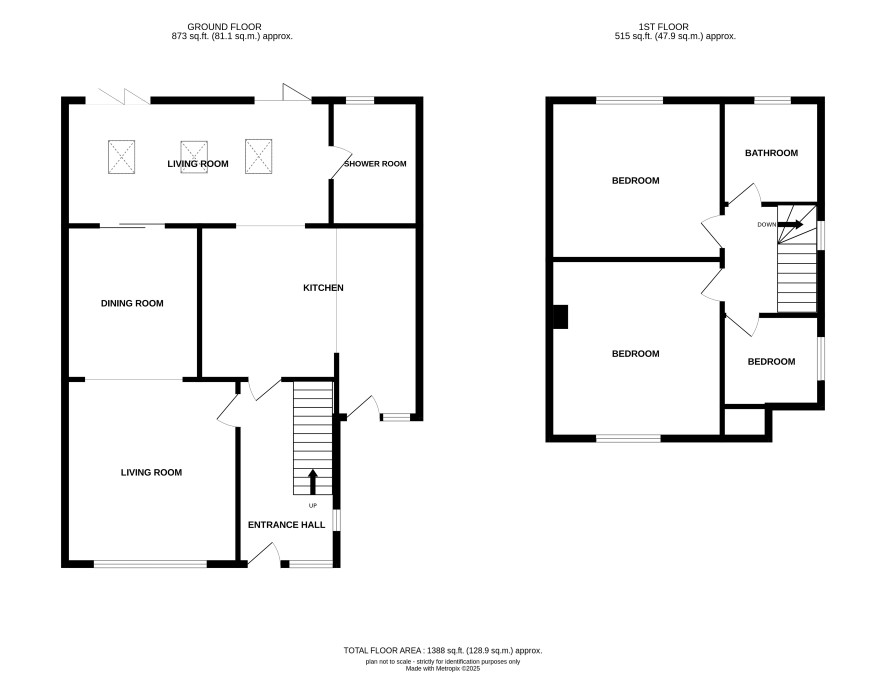
Ground Floor

Kitchen, 2 x living rooms, dining room and shower room.

First Floor

Three bedrooms and bathroom.

Externally

Garage, drive and front and rear garden.

ADDITIONAL INFORMATION

Council Tax

Band A.

EPC Rating

D.

Tenure

Freehold.

Charges & Payments

In addition to the deposit Administration Charge: 0.9% inc VAT of the purchase price subject to a minimum of £1,500 inc VAT. Buyer's Premium: £1,500 inc VAT.

Important Notice to Prospective Buyers:

We draw your attention to the Special Conditions of Sale within the Legal Pack, referring to other charges in addition to the purchase price which may become payable. Such costs may include Search Fees, reimbursement of Sellers costs and Legal Fees, and Transfer Fees amongst others.

Additional Fees

Administration Charge - See above

Disbursements - Please see the legal pack for any disbursements listed that may become payable by the purchaser on completion.

View Larger Map

Disclaimer: The map preview provided above is for general guidance only and may not accurately reflect the exact location or surrounding buildings. Prospective buyers and interested parties are strongly advised to independently verify the precise location and surroundings before bidding.