For Sale By Auction | 12:00, 14 May 2025 | Lot 7a

51 St. Alban Road, Leeds , West Yorkshire LS9 6LA

Sold

  • Mixed Use
  • Tenure: Freehold

Call the team on 0113 393 3482 for more information

Auction Date

Wed 14/05/2025

Auction Time

12:00

Auction Venue

Live Stream

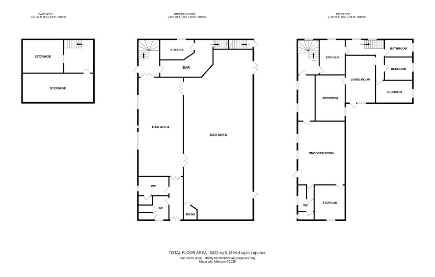
This former social club with a three bedroom apartment is an ideal opportunity for an investor. With the large floor area, there are numerous development opportunities, subject to relevant planning permission. The property has been empty for a few years so is in need of renovation. Internally, there is the former bar and bar area to the ground floor, plus a snooker room and self contained three bedroom flat to the first floor. In total the floor area is approximately 5,300 sqft. It's located within a residential area just off Killinghall Road, only two miles east of Leeds city centre. There are excellent bus routes into the city centre, and local amenities such as schools and supermarkets are an easy drive.

Tenure

Freehold

Ground Floor

Bar areas, bar, kitchen and 2 x WC.

First Floor

Kitchen, living room, bathroom, 3 x bedrooms, snooker room, WC and storage.

Externlly

Parking to the front

Additional Information

EPC Rating

C

Tenure

Freehold

Charges and Payments

In addition to the deposit Administration Charge: 1.2% inc VAT of the purchase price subject to a minimum of £1,500 inc VAT.

Important Notice to Prospective Buyers:

We draw your attention to the Special Conditions of Sale within the Legal Pack, referring to other charges in addition to the purchase price which may become payable. Such costs may include Search Fees, reimbursement of Sellers costs and Legal Fees, and Transfer Fees amongst others.

Additional Fees

Administration Charge - See above

Disbursements - Please see the legal pack for any disbursements listed that may become payable by the purchaser on completion.

View Larger Map

Disclaimer: The map preview provided above is for general guidance only and may not accurately reflect the exact location or surrounding buildings. Prospective buyers and interested parties are strongly advised to independently verify the precise location and surroundings before bidding.