For Sale By Auction | 12:00, 09 July 2025 | Lot 60

4 Kingsley Close, Milnthorpe, Wakefield, West Yorkshire WF2 7EB

Sold

  • Semi-Detached House
  • 3 Bedrooms
  • Tenure: Freehold

Call the team on 0113 393 3482 for more information

Auction Date

Wed 09/07/2025

Auction Time

12:00

Auction Venue

Live Stream

This three bedroom semi detached property with driveway, garage and garden is offered for sale via traditional auction. The property does require full renovation throughout, however this would make a fantastic project. Kingsley Close is a select cul-de-sac located just off Kingsley Avenue close to Standbridge Lane in the heart of Milnthorpe and therefore close to local schools, shops and transport amenities. Nearby motorway links are also close by, ideal for the commuter who is looking to travel further afield.

Tenure

Freehold

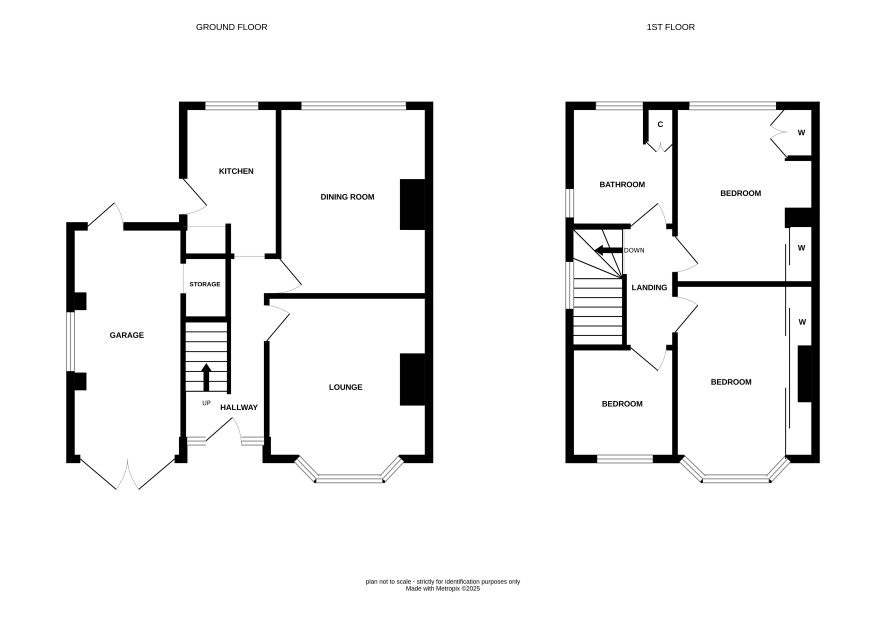
Ground Floor

Lounge, dining room, kitchen.

First Floor

Three bedrooms and bathroom.

External

Rear garden, driveway and garage.

ADDITIONAL INFORMATION

Council Tax

Band C.

EPC

E

Tenure

Freehold.

Charges & Payments

In addition to the deposit Administration Charge: 1.2% inc VAT of the purchase price subject to a minimum of £1,500 inc VAT. Searches £300 inc VAT

Disbursements

Any additional disbursements payable by the purchaser are yet to be confirmed by the vendor’s solicitor. For more details, please see the legal pack.

Guide Price

Guides are provided as an indication of each seller's minimum expectation. They are not necessarily figures which a property will sell for and may change at any time prior to the auction. Each property will be offered subject to a Reserve (a figure below which the Auctioneer cannot sell the property during the auction) which we expect will be set within the Guide Range or no more than 10% above a single figure Guide.

Important Notice to Prospective Buyers:

We draw your attention to the Special Conditions of Sale within the Legal Pack, referring to other charges in addition to the purchase price which may become payable. Such costs may include Search Fees, reimbursement of Sellers costs and Legal Fees, and Transfer Fees amongst others.

Additional Fees

Administration Charge - See above

Disbursements - Please see the legal pack for any disbursements listed that may become payable by the purchaser on completion.

View Larger Map

Disclaimer: The map preview provided above is for general guidance only and may not accurately reflect the exact location or surrounding buildings. Prospective buyers and interested parties are strongly advised to independently verify the precise location and surroundings before bidding.