Sold Prior | Lot 30

4 Bowman Road, Bradford, West Yorkshire BD6 2JU

Sold Prior

  • Semi-Detached House
  • 4 Bedrooms
  • Tenure: Freehold

Call the team on 0113 393 3482 for more information

Auction Date

Wed 09/07/2025

Auction Time

12:00

Auction Venue

Live Stream

This substanital four bedroom semi-detached property with off street parking and long rear garden is offered for sale via traditional auction. Whilst the property has clearly been well cared for during its previous occupancy the property would benefit from internal renovation making this a fantastic project oppertunity. Sat within a cul de sac location just off Halifax Road, ideal for many amenities, schools, motorway commute and links to Bradford/Halifax. Please note that a disused mineshaft is located underneath the property. Buyers are advised to do there own research in this regard.

Tenure

Freehold

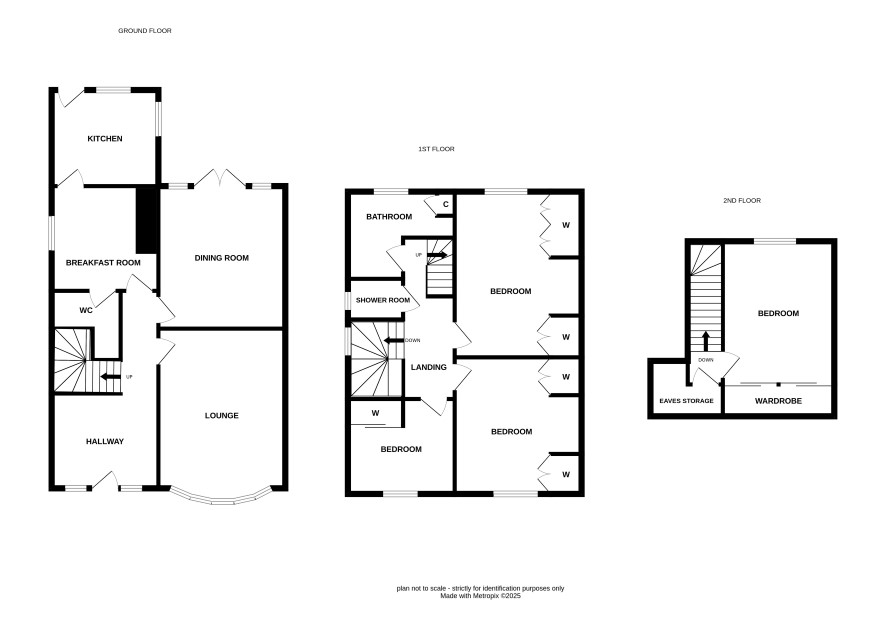
Ground Floor

Lounge, dinning room, breakfast room, kitchen, W/C

First Floor

Three bedrooms, shower room, bathroom

Second Floor

Bedroom

External

Off Street parking and long rear garden

Additional Information

Council Tax

D.

EPC Rating

E.

Tenure

Freehold

Charges and Payments

In addition to the deposit Administration Charge: 1.2% inc VAT of the purchase price subject to a minimum of £1,500 inc VAT.

Disbursements

Any additional disbursements payable by the purchaser are yet to be confirmed by the vendor’s solicitor. For more details, please see the legal pack.

Important Notice to Prospective Buyers:

We draw your attention to the Special Conditions of Sale within the Legal Pack, referring to other charges in addition to the purchase price which may become payable. Such costs may include Search Fees, reimbursement of Sellers costs and Legal Fees, and Transfer Fees amongst others.

Additional Fees

Administration Charge - See above

Disbursements - Please see the legal pack for any disbursements listed that may become payable by the purchaser on completion.

View Larger Map

Disclaimer: The map preview provided above is for general guidance only and may not accurately reflect the exact location or surrounding buildings. Prospective buyers and interested parties are strongly advised to independently verify the precise location and surroundings before bidding.