Withdrawn

17/17a Cross Road, Bradford, West Yorkshire BD8 8QN

Withdrawn

  • Terraced House
  • 8 Bedrooms

Call the team on 0113 393 3482 for more information

Auction Date

Wed 03/09/2025

Auction Time

12:00

Auction Venue

Live Stream

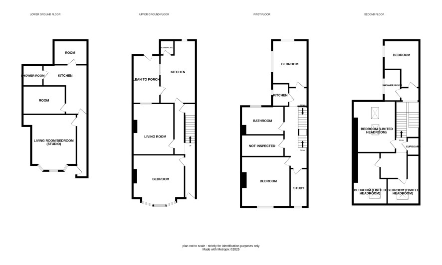
This substantial through terrace property with self-contained flat to the lower ground floor is offered with vacant possession and likely to appeal to both large families and investors seeking strong potential returns. We understand that although the property had an HMO licence in the past, in more recent times it has been let to a housing association on an FRI lease. Although not all the rooms in the property have been inspected, we believe number 17 comprises 3 x reception rooms, 2 x kitchens, 7 x bedrooms and 3 x bath / shower rooms while 17A comprises a large living / bedroom, kitchen, shower room and two further rooms, neither of which has a window. The property is located just over a mile to the north west of Bradford city centre and 0.7 miles south east of the Royal Infirmary. Buyers should be aware that up-to-date photos and a virtual tour will be provided in due course.

House (Number 17)

3 x reception rooms, 2 x kitchens, 7 x bedrooms and 3 x bath / shower rooms.

Basement Flat (Number 17a)

Large living / bedroom, kitchen, shower room and two further rooms.

Additional Information

Council Tax

Bradford

EPC Rating

House: D Flat: E

Tenure

Freehold

Charges and Payments

In addition to the deposit Administration Charge: 1.2% inc VAT of the purchase price subject to a minimum of £1,500 inc VAT. Searches: £300 inc VAT.

Important Notice to Prospective Buyers:

We draw your attention to the Special Conditions of Sale within the Legal Pack, referring to other charges in addition to the purchase price which may become payable. Such costs may include Search Fees, reimbursement of Sellers costs and Legal Fees, and Transfer Fees amongst others.

Additional Fees

Administration Charge - See above

Disbursements - Please see the legal pack for any disbursements listed that may become payable by the purchaser on completion.

View Larger Map

Disclaimer: The map preview provided above is for general guidance only and may not accurately reflect the exact location or surrounding buildings. Prospective buyers and interested parties are strongly advised to independently verify the precise location and surroundings before bidding.