Postponed | Lot 32

Units 1 & 2, 5 Stainbeck Lane, Chapel Allerton, Leeds , West Yorkshire LS7 3PJ

Postponed

  • Retail Property (high street)

Call the team on 0113 393 3482 for more information

Auction Date

Wed 03/09/2025

Auction Time

12:00

Auction Venue

Live Stream

This Grade II listed freehold premises comprises two separate restaurant premises (both including ground floor and basement accommodation) generating a combined rental income of £71,000 + VAT per annum. Unit 1 is let on a five year lease from December 2022 to Mythos Greek Limited for £45,000 per annum with Unit 2 let on a 10 year lease from October 2022 to Zuppi Limited (T/A The Cats Pyjamas) for £26,000 per annum. The remainer of the property has previously been converted into 6 apartments, all sold off on 999 year leases many years ago. The property occupies a prominent location in the heart of Chapel Allerton, one of Leeds most popular suburbs and is just two miles to the North of the city centre. Interested parties should be aware that VAT will be payable on the purchase price. Please note: a 6 week completion applies to this lot.

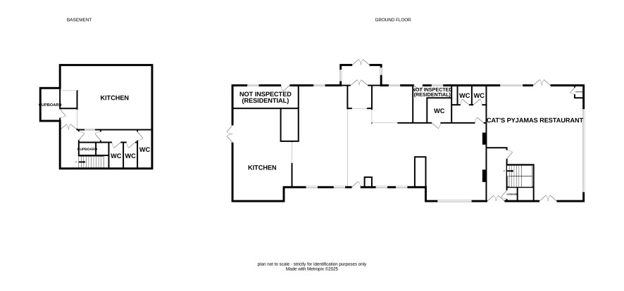
Basement

Kitchen & WCs

Ground Floor

Restaurant areas, kitchen & WCs

Additional Information

Council Tax

Leeds City Council

EPC Ratings

Unit 1 = D Unit 2 = B

Tenure

Freehold

Charges and Payments

In addition to the deposit Administration Charge: 1.2% inc VAT of the purchase price subject to a minimum of £1,500 inc VAT.

Important Notice to Prospective Buyers:

We draw your attention to the Special Conditions of Sale within the Legal Pack, referring to other charges in addition to the purchase price which may become payable. Such costs may include Search Fees, reimbursement of Sellers costs and Legal Fees, and Transfer Fees amongst others.

Additional Fees

Administration Charge - See above

Disbursements - Please see the legal pack for any disbursements listed that may become payable by the purchaser on completion.

View Larger Map

Disclaimer: The map preview provided above is for general guidance only and may not accurately reflect the exact location or surrounding buildings. Prospective buyers and interested parties are strongly advised to independently verify the precise location and surroundings before bidding.