For Sale By Auction | 12:00, 03 September 2025 | Lot 19

138 Tong Street, Bradford, West Yorkshire BD4 9PP

Sold After

  • Semi-Detached House
  • 3 Bedrooms

Call the team on 0113 393 3482 for more information

Auction Date

Wed 03/09/2025

Auction Time

12:00

Auction Venue

Live Stream

This three bedroom semi detached property with additional loft room, driveway garage and gardens is offered for sale via traditional auction. The property has had minor refurbishment work done in 2024 which include new kitchen, new boiler and decoration work, and was achieving rent in the amount of £850pm up until June 2025. Should a buyer wish the property could be further improved or would make a great project or addition to a rental portfolio. Situated on the A650 Tong Street and therefore providing ideal access to the M606, motorway network and access to Bradford City Centre, as well as a range of amenities.

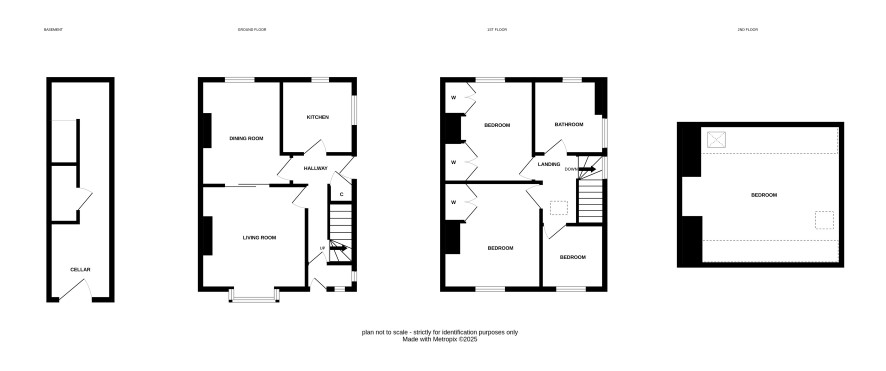
Lower ground floor

Cellar

Ground floor

Living room, dining room and kitchen

First floor

Three bedrooms and a bathroom

Second floor

Loft room

Externally

Gardens to the front and rear, driveway and garage

Additional Information

Council Tax

Bradford City Council - Band B

EPC Rating

D

Tenure

Freehold

Charges and Payments

In addition to the deposit Administration Charge: 1.2% inc VAT of the purchase price subject to a minimum of £1,500 inc VAT.

Important Notice to Prospective Buyers:

We draw your attention to the Special Conditions of Sale within the Legal Pack, referring to other charges in addition to the purchase price which may become payable. Such costs may include Search Fees, reimbursement of Sellers costs and Legal Fees, and Transfer Fees amongst others.

Additional Fees

Administration Charge - See above

Disbursements - Please see the legal pack for any disbursements listed that may become payable by the purchaser on completion.

View Larger Map

Disclaimer: The map preview provided above is for general guidance only and may not accurately reflect the exact location or surrounding buildings. Prospective buyers and interested parties are strongly advised to independently verify the precise location and surroundings before bidding.