For Sale By Auction | 12:00, 03 September 2025 | Lot 6

7 Hawthorn Grove, Rodley , Leeds, West Yorkshire LS13 1NH

Sold

  • Semi-Detached House
  • 3 Bedrooms

Call the team on 0113 393 3482 for more information

Auction Date

Wed 03/09/2025

Auction Time

12:00

Auction Venue

Live Stream

This extended three bedroom, two reception room semi detached property is offered for sale via traditional auction. Whilst the property is in reasonable condition, there is also scope for buyers to make internal improvements should they wish. The property would make a great family home, renovation project or addition to a rental portfolio. Nestled in a residential cul-de-sac in the highly sought-after area of Rodley, close to local schools, shops, and services, and just a short distance from the nearby by Leeds/ Liverpool canal it also offers convenient access to the nearby Ring Road for convenient travel into Horsforth, Calverley, Pudsey, and Leeds City Centre, and is perfect for growing families. Buyers should note that the loft room is not compliant with building regulations and buyers are advised to do their own research in this regard.

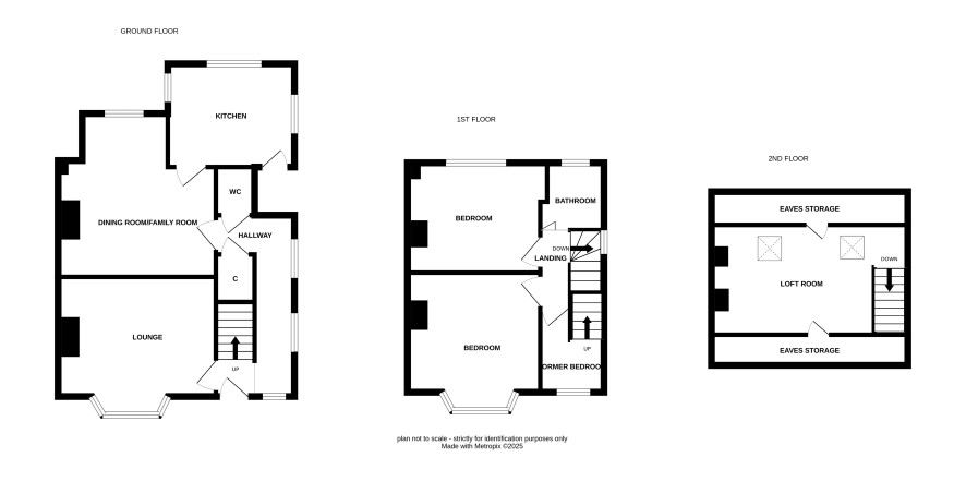
Ground Floor

Lounge, dining room, kitchen and WC

First Floor

Two bedrooms, box room and a bathroom

Second Floor

Loft room

Externally

Gardens to the front and rear

Additional Information

Council Tax

Leeds City Council - Band C

EPC Rating

D

Tenure

Freehold

Charges and Payments

In addition to the deposit Administration Charge: 1.2% inc VAT of the purchase price subject to a minimum of £1,500 inc VAT. Searches £300 inc VAT.

Important Notice to Prospective Buyers:

We draw your attention to the Special Conditions of Sale within the Legal Pack, referring to other charges in addition to the purchase price which may become payable. Such costs may include Search Fees, reimbursement of Sellers costs and Legal Fees, and Transfer Fees amongst others.

Additional Fees

Administration Charge - See above

Disbursements - Please see the legal pack for any disbursements listed that may become payable by the purchaser on completion.

View Larger Map

Disclaimer: The map preview provided above is for general guidance only and may not accurately reflect the exact location or surrounding buildings. Prospective buyers and interested parties are strongly advised to independently verify the precise location and surroundings before bidding.