Withdrawn

Flat 18 The Square , Castleford, West Yorkshire WF10 3JJ

Withdrawn

  • Flat
  • 3 Bedrooms

Call the team on 0113 393 3482 for more information

Auction Date

Wed 03/09/2025

Auction Time

12:00

Auction Venue

Live Stream

This freehold, three bedroom apartment is ideal for an investor seeking to expand their rental portfolio as it’s most recently achieved £750pcm. The vacant flat is positioned on the first floor above a parade of shops and has it’s own separate access. Internally it does require cosmetic upgrade, but this should be achievable on a low budget. It’s located with Castleford, a town benefiting from a train station, shops, schools parks and more. It’s also very convenient for commuters as the A1 and M62 are on the doorstep.

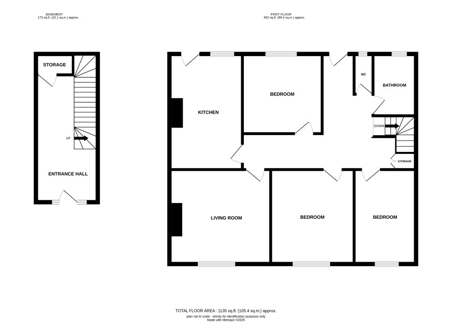
Ground Floor

Storage.

First Floor

Three bedrooms, wc, bathroom and kitchen.

ADDITIONAL INFORMATION

Council Tax

Band A.

EPC

Rating C.

Tenure

Freehold.

Charges & Payments

In addition to the deposit Administration Charge: 1.2% inc VAT of the purchase price subject to a minimum of £1,500 inc VAT. Searches £300 inc VAT.

Important Notice to Prospective Buyers:

We draw your attention to the Special Conditions of Sale within the Legal Pack, referring to other charges in addition to the purchase price which may become payable. Such costs may include Search Fees, reimbursement of Sellers costs and Legal Fees, and Transfer Fees amongst others.

Additional Fees

Administration Charge - See above

Disbursements - Please see the legal pack for any disbursements listed that may become payable by the purchaser on completion.

View Larger Map

Disclaimer: The map preview provided above is for general guidance only and may not accurately reflect the exact location or surrounding buildings. Prospective buyers and interested parties are strongly advised to independently verify the precise location and surroundings before bidding.