For Sale By Auction | 12:00, 03 September 2025 | Lot 29

17 Temple Crescent, Leeds, West Yorkshire LS11 8BG

Sold

  • Terraced House
  • 4 Bedrooms

Call the team on 0113 393 3482 for more information

Auction Date

Wed 03/09/2025

Auction Time

12:00

Auction Venue

Live Stream

This substantial end terrace was converted into four flats over 30 years ago with three currently vacant and the ground floor flat let at £8,078 per annum. We have been advised that all the flats have been refurbished in the last three years, have their own coin operated electric meters (no gas) and pay their own council tax. Electrical safety certificates were completed earlier this year. The property is located in Beeston, South Leeds, an area that continues to prove popular with investors seeking stronger than average returns. Interested parties should be aware that the ceiling height in the basement was particularly low (approximately 190 cm) and are advised to do their own research in this regard.

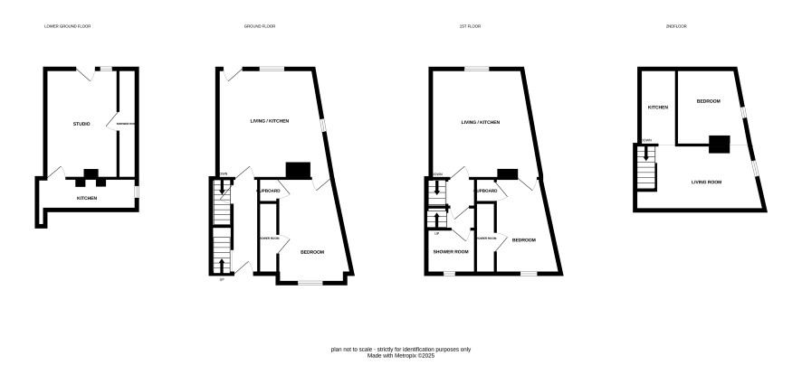
Lower Ground Floor

Studio, kitchen and shower room

Ground Floor

Lounge/kitchen, bedroom and shower room

First Floor

Lounge/kitchen, bedroom, 2 x shower rooms

Second Floor

Living room, kitchen and bedroom (shower room located on the first floor)

Externally

Yard to the front

Additional Information

Council Tax

Leeds City Council - Band A

EPC Ratings

Basement Flat: D Flat 1: D Flat 2: D Flat 3: E

Tenure

Freehold

Charges and Payments

In addition to the deposit Administration Charge: 1.2% inc VAT of the purchase price subject to a minimum of £1,500 inc VAT. Searches £300 inc VAT.

Important Notice to Prospective Buyers:

We draw your attention to the Special Conditions of Sale within the Legal Pack, referring to other charges in addition to the purchase price which may become payable. Such costs may include Search Fees, reimbursement of Sellers costs and Legal Fees, and Transfer Fees amongst others.

Additional Fees

Administration Charge - See above

Disbursements - Please see the legal pack for any disbursements listed that may become payable by the purchaser on completion.

View Larger Map

Disclaimer: The map preview provided above is for general guidance only and may not accurately reflect the exact location or surrounding buildings. Prospective buyers and interested parties are strongly advised to independently verify the precise location and surroundings before bidding.