For Sale By Auction | 12:00, 22 October 2025 | Lot 4

Flats 1 & 2, 36 Stonefall Avenue, Harrogate, North Yorkshire HG2 7NP

Sold

  • Terraced House
  • 3 Bedrooms

Call the team on 0113 393 3482 for more information

Auction Date

Wed 22/10/2025

Auction Time

12:00

Auction Venue

Live Stream

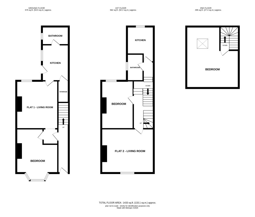
This through terrace property has accommodation over three floors, and has previously been converted into two flats. To the ground floor is a one bedroom flat, whilst a two bedroom flat can be found on the 1st and 2nd floor. Overall it’s in good internal condition but some areas do require cosmetic upgrades and it benefits from a rear garden and garage. This is to be sold with vacant possession. It’s located within the Starbeck area of Harrogate, and is 1.5 miles from Harrogate Town Centre. There are upmarket shops, schools, parks and restaurants within the town, plus Starbeck train station is a short walk. Please note: A 14 day completion applies to this lot.

Ground Floor

Living room, kitchen, bedroom and bathroom

First Floor

Living room, kitchen, bedroom and bathroom

Second Floor

Bedroom

Externally

Garage and rear garden

Additional Information

Council Tax

North Yorkshire - Band A

EPC Ratings

Ground Floor Flat - E First Floor Flat - E

Tenure

Freehold

Charges and Payments

In addition to the deposit Administration Charge: 1.2% inc VAT of the purchase price subject to a minimum of £1,500 inc VAT. Buyer’s Premium: £1,500 inc VAT.

Important Notice to Prospective Buyers:

We draw your attention to the Special Conditions of Sale within the Legal Pack, referring to other charges in addition to the purchase price which may become payable. Such costs may include Search Fees, reimbursement of Sellers costs and Legal Fees, and Transfer Fees amongst others.

Additional Fees

Administration Charge - See above

Disbursements - Please see the legal pack for any disbursements listed that may become payable by the purchaser on completion.

View Larger Map

Disclaimer: The map preview provided above is for general guidance only and may not accurately reflect the exact location or surrounding buildings. Prospective buyers and interested parties are strongly advised to independently verify the precise location and surroundings before bidding.