Postponed | Lot 51

37 Willans Avenue, Rothwell, Leeds, West Yorkshire LS26 0NF

Postponed

  • Terraced House
  • 3 Bedrooms

Call the team on 0113 393 3482 for more information

Auction Date

Wed 22/10/2025

Auction Time

12:00

Auction Venue

Live Stream

This three bedroom end terrace with off street parking, garage and garden is offered for sale via traditional auction. The property does require full renovation throughout, however would make a great project or addition to a rental portfolio. The property is well placed for daily travel to Leeds and Wakefield City Centres via the A61 and is within easy reach of the A1/M1 link road and other national motorway networks. The property is also within easy reach of local schools. shops and amenities Please note that the flooring in the kitchen is unstable. Buyers are advised to do their own research in this regard.

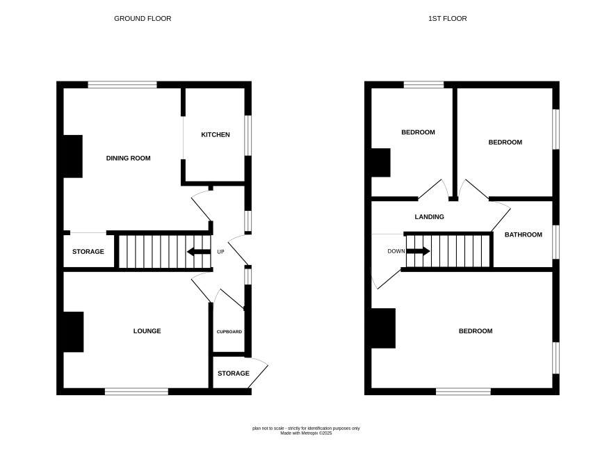
Ground Floor

Lounge, dining room and kitchen

First Floor

Three bedrooms and a bathroom

Externally

Driveway, gardens to the front and rear and a garage

Additional Information

Council Tax

Leeds City Council - Band B

EPC Rating

E

Tenure

Freehold

Charges and Payments

In addition to the deposit Administration Charge: 1.2% inc VAT of the purchase price subject to a minimum of £1,500 inc VAT. Searches £300 inc VAT

Important Notice to Prospective Buyers:

We draw your attention to the Special Conditions of Sale within the Legal Pack, referring to other charges in addition to the purchase price which may become payable. Such costs may include Search Fees, reimbursement of Sellers costs and Legal Fees, and Transfer Fees amongst others.

Additional Fees

Administration Charge - See above

Disbursements - Please see the legal pack for any disbursements listed that may become payable by the purchaser on completion.

View Larger Map

Disclaimer: The map preview provided above is for general guidance only and may not accurately reflect the exact location or surrounding buildings. Prospective buyers and interested parties are strongly advised to independently verify the precise location and surroundings before bidding.