Withdrawn | Lot 60

77 Barnsley Road, South Elmsall, Pontefract, West Yorkshire WF9 2QW

Withdrawn

  • Commercial Property
  • Tenure: Freehold

Call the team on 0113 393 3482 for more information

Auction Date

Wed 22/10/2025

Auction Time

12:00

Auction Venue

Live Stream

This vacant commercial property with outside space and outbuildings to the rear is offered for sale via traditional auction. The property is located on the popular South Elmsall high street and would be a great purchase for an owner occupier of someone looking to add to a commerical portfolio. Additionally, there may be scope to convert the upper floor into a self contained apartment subject to the passing of relevant permissions.

Tenure

Freehold

Lower Ground Floor

Cellar.

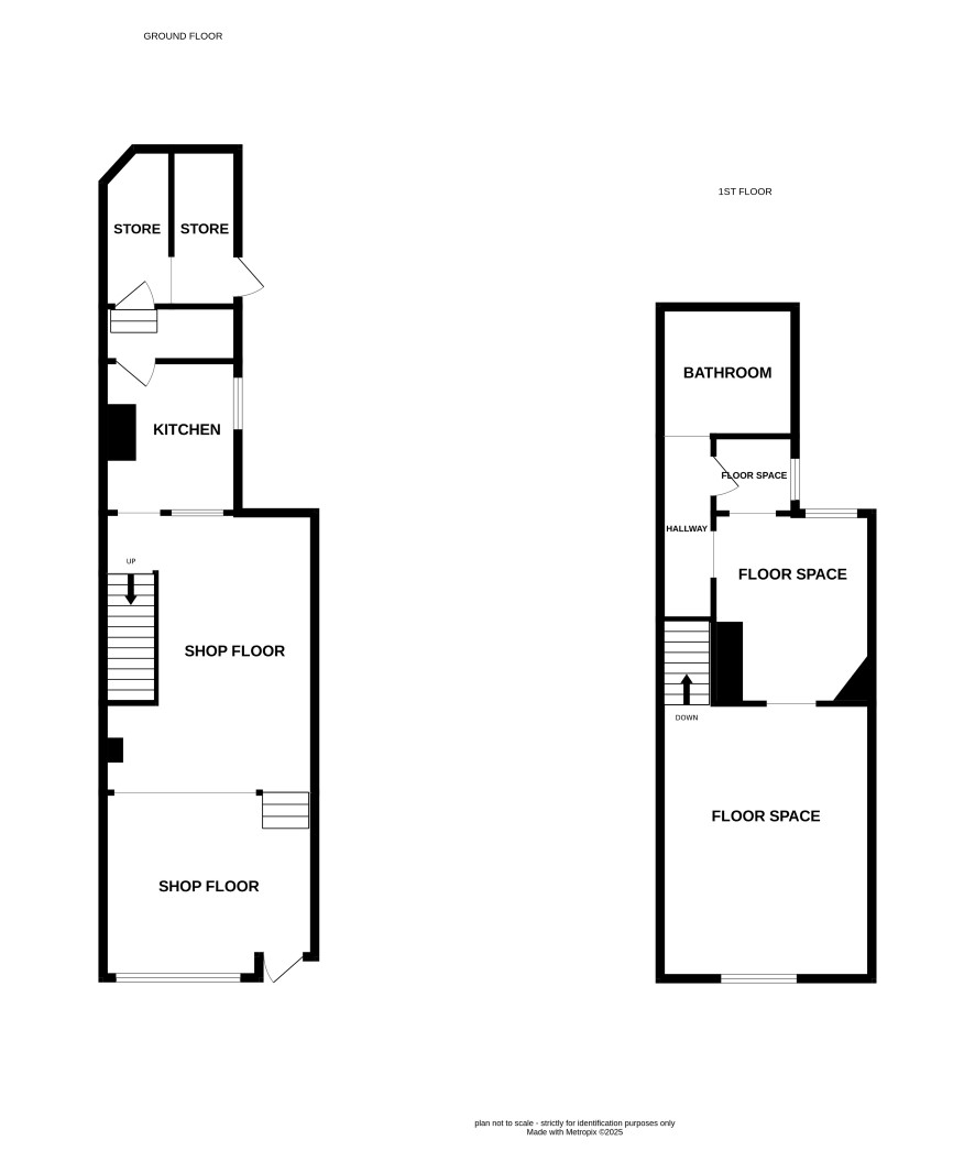
Ground Floor

Shop floor, kitchen and store rooms.

First Floor

Three rooms and bathroom.

Externally

Outside space and outbuildings to the rear.

ADDITIONAL INFORMATION

EPC

Rating D.

Tenure

Freehold.

Charges & Payments

In addition to the deposit Administration Charge: 1.2% inc VAT of the purchase price subject to a minimum of £1,500 inc VAT.

Important Notice to Prospective Buyers:

We draw your attention to the Special Conditions of Sale within the Legal Pack, referring to other charges in addition to the purchase price which may become payable. Such costs may include Search Fees, reimbursement of Sellers costs and Legal Fees, and Transfer Fees amongst others.

Additional Fees

Administration Charge - See above

Disbursements - Please see the legal pack for any disbursements listed that may become payable by the purchaser on completion.

View Larger Map

Disclaimer: The map preview provided above is for general guidance only and may not accurately reflect the exact location or surrounding buildings. Prospective buyers and interested parties are strongly advised to independently verify the precise location and surroundings before bidding.