For Sale By Auction | 12:00, 22 October 2025

19 Woodbridge Lawn, Leeds, West Yorkshire LS6 3LU

*Guide | £120,000 (plus fees)

  • End of Terrace House
  • 3 Bedrooms

Call the team on 0113 393 3482 for more information

Auction Date

Wed 22/10/2025

Auction Time

12:00

Auction Venue

Live Stream

This three bedroom end terrace property with garden is offered for sale via traditional auction. The property is in good internal condition and would be ready for a tenant to move into, however could also be internally modernised should a buyer wish. This property would make a great addition to a rental portfolio. Situated in popular Headingley the property offers excellent bus and road links to Leeds city centre, Kirkstall, West Park and the surrounding areas. Headingley train station is nearby providing rail links to Leeds and Harrogate. Walking distance to local shops with the many amenities of Headingley centre a short distance away. Please note the property is of non-standard construction. Buyers are advised to do their own research in this regard.

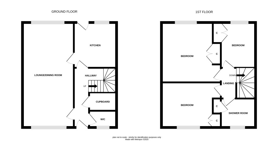
ACCOMMODATION

Ground Floor

Lounge/dining room, kitchen and downstairs wc.

First Floor

Three bedrooms and shower room.

Externally

Garden and external store.

ADDITIONAL INFORMATION

Council Tax

Band A.

EPC

Rating D.

Charges & Payments

In addition to the deposit Administration Charge: 1.2% inc VAT of the purchase price subject to a minimum of £1,500 inc VAT. Searches £300 inc VAT

Important Notice to Prospective Buyers:

We draw your attention to the Special Conditions of Sale within the Legal Pack, referring to other charges in addition to the purchase price which may become payable. Such costs may include Search Fees, reimbursement of Sellers costs and Legal Fees, and Transfer Fees amongst others.

Additional Fees

Administration Charge - See above

Disbursements - Please see the legal pack for any disbursements listed that may become payable by the purchaser on completion.

View Larger Map

Disclaimer: The map preview provided above is for general guidance only and may not accurately reflect the exact location or surrounding buildings. Prospective buyers and interested parties are strongly advised to independently verify the precise location and surroundings before bidding.