For Sale By Auction | 12:00, 22 October 2025 | Lot 20

Flats 1-4, 10 Nursery Mount, Leeds, West Yorkshire LS10 3ES

Sold

  • Terraced House
  • 3 Bedrooms

Call the team on 0113 393 3482 for more information

Auction Date

Wed 22/10/2025

Auction Time

12:00

Auction Venue

Live Stream

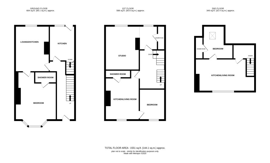
This substantial through terrace property was converted many years ago and currently comprises 3 x 1 bedroom flats, a studio and communal kitchen. Each of the flats has its own electricity meter and fuse box with the landlord paying for the council tax, water and communal electricity. At present, the property is fully let and producing an impressive annual income of £26,400 offering a gross return of over 20% when based on the quoted guide price. Externally the property has yards to the front and rear and is located in South Leeds between Hunslet and Belle Isle offering excellent access to the city centre and local motorway network. Interested parties should be aware that the property has an EPC exemption until 1st October 2028.

ACCOMMODATION

Cellar

Storage.

Ground Floor

Flat 1 and communal kitchen.

First Floor

Flat 2 and flat 3.

Second Floor

Flat 4.

ADDITIONAL INFORMATION

Council Tax

Band B.

EPC

Exempt.

Tenure

Freehold.

Charges & Payments

In addition to the deposit Administration Charge: 1.2% inc VAT of the purchase price subject to a minimum of £1,500 inc VAT. Searches £300 inc VAT.

Important Notice to Prospective Buyers:

We draw your attention to the Special Conditions of Sale within the Legal Pack, referring to other charges in addition to the purchase price which may become payable. Such costs may include Search Fees, reimbursement of Sellers costs and Legal Fees, and Transfer Fees amongst others.

Additional Fees

Administration Charge - See above

Disbursements - Please see the legal pack for any disbursements listed that may become payable by the purchaser on completion.

View Larger Map

Disclaimer: The map preview provided above is for general guidance only and may not accurately reflect the exact location or surrounding buildings. Prospective buyers and interested parties are strongly advised to independently verify the precise location and surroundings before bidding.