For Sale By Auction | 12:00, 22 October 2025

63 Osmondthorpe Lane, Leeds, West Yorkshire LS9 0LW

*Guide | £100,000 (plus fees)

  • Semi-Detached House
  • 3 Bedrooms

Call the team on 0113 393 3482 for more information

Auction Date

Wed 22/10/2025

Auction Time

12:00

Auction Venue

Live Stream

This three bedroom semi-detached property has been a rented out for many years but is now offered with vacant possession and is sure to be of interest to investors and developers alike. Externally the property has a driveway providing off street parking and a generous rear garden ideal for any growing family. The property is located in a popular residential location just two miles to the East of Leeds city centre.

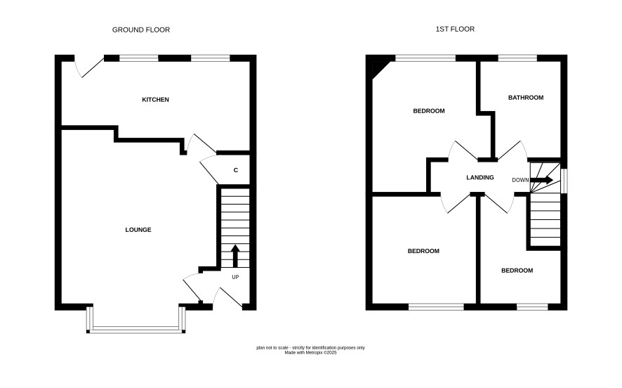
Ground Floor

Living room and kitchen

First Floor

Three bedrooms and a bathroom

Externally

Driveway and large garden to the rear

Additional Information

Council Tax

Band A.

EPC

Rating to follow.

Tenure

Freehold.

Charges & Payments

In addition to the deposit Administration Charge: 1.2% inc VAT of the purchase price subject to a minimum of £1,500 inc VAT. Searches £300 inc VAT.

Important Notice to Prospective Buyers:

We draw your attention to the Special Conditions of Sale within the Legal Pack, referring to other charges in addition to the purchase price which may become payable. Such costs may include Search Fees, reimbursement of Sellers costs and Legal Fees, and Transfer Fees amongst others.

Additional Fees

Administration Charge - See above

Disbursements - Please see the legal pack for any disbursements listed that may become payable by the purchaser on completion.

View Larger Map

Disclaimer: The map preview provided above is for general guidance only and may not accurately reflect the exact location or surrounding buildings. Prospective buyers and interested parties are strongly advised to independently verify the precise location and surroundings before bidding.