For Sale By Auction | 12:00, 10 December 2025 | Lot 4

31 Dartmouth Avenue, Morley, Leeds, West Yorkshire LS27 0DJ

*Guide | £150,000 (plus fees)

  • Semi-Detached House
  • 3 Bedrooms

Call the team on 0113 393 3482 for more information

Auction Date

Wed 10/12/2025

Auction Time

12:00

Auction Venue

Live Stream

This spacious three bedroom semi-detached property with off street parking and outside space is offered for sale via traditional auction. The property does require some internal renovation but would make a great project or addition to a rental portfolio. The property is situated in a popular residential location within easy reach of Morley town centre, all its amenities and the M1/M62 motorway links.

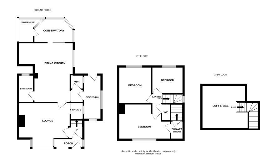
Ground Floor

Lounge, dining kitchen, WC, bathroom, conservatory and porch

First Floor

Three bedrooms, WC and shower room

Second Floor

Loft Room

Externally

Off-street parking and yard to the front and side

Additional Information

Council Tax

Leeds City Council - Band B

EPC Rating

D

Tenure

Freehold

Charges and Payments

In addition to the deposit Administration Charge: 1.2% inc VAT of the purchase price subject to a minimum of £1,500 inc VAT. Searches £300 inc VAT.

Important Notice to Prospective Buyers:

We draw your attention to the Special Conditions of Sale within the Legal Pack, referring to other charges in addition to the purchase price which may become payable. Such costs may include Search Fees, reimbursement of Sellers costs and Legal Fees, and Transfer Fees amongst others.

Additional Fees

Administration Charge - See above

Disbursements - Please see the legal pack for any disbursements listed that may become payable by the purchaser on completion.

View Larger Map

Disclaimer: The map preview provided above is for general guidance only and may not accurately reflect the exact location or surrounding buildings. Prospective buyers and interested parties are strongly advised to independently verify the precise location and surroundings before bidding.