Sold Prior | Lot 15

35 North Lodge Avenue, Harrogate, North Yorkshire HG1 3HX

Sold Prior

  • Terraced House
  • 2 Bedrooms

Call the team on 0113 393 3482 for more information

Auction Date

Wed 10/12/2025

Auction Time

12:00

Auction Venue

Live Stream

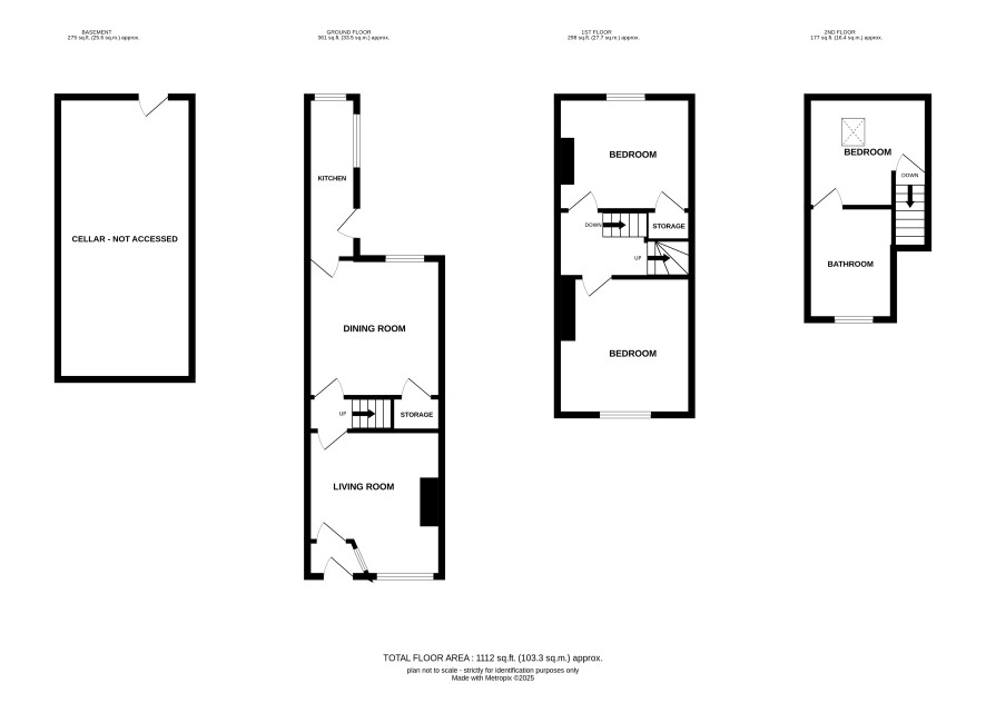
This vacant two bedroom, terraced house is to be sold via traditional auction on the 22nd October 2025. Internally, it requires refurbishment throughout, so it would be ideal for an investor. Externally, it benefits from a rear garden and on-street parking. To the second floor is the bathroom which is accessed via a room that has previously used as a bedroom. It is located within Harrogate, and is one mile north of Harrogate Town Centre. There are upmarket shops, schools, train station, parks and restaurants within the town and is a popular location for both rentals and family homes.”

Ground Floor

Living room, dining room and kitchen

First Floor

Two bedrooms

Second Floor

Bedroom and bathroom

Externally

Rear garden

Additional Information

Council Tax

North Yorkshire - Band B

EPC Rating

D

Tenure

Freehold

Charges and Payments

In addition to the deposit Administration Charge: 1.2% inc VAT of the purchase price subject to a minimum of £1,500 inc VAT.

Important Notice to Prospective Buyers:

We draw your attention to the Special Conditions of Sale within the Legal Pack, referring to other charges in addition to the purchase price which may become payable. Such costs may include Search Fees, reimbursement of Sellers costs and Legal Fees, and Transfer Fees amongst others.

Additional Fees

Administration Charge - See above

Disbursements - Please see the legal pack for any disbursements listed that may become payable by the purchaser on completion.

View Larger Map

Disclaimer: The map preview provided above is for general guidance only and may not accurately reflect the exact location or surrounding buildings. Prospective buyers and interested parties are strongly advised to independently verify the precise location and surroundings before bidding.