For Sale By Auction | 12:00, 10 December 2025 | Lot 20

Cross Hills Social Club, 71 Main Street , Cross Hills , Keighley, North Yorkshire BD20 8PH

*Guide | £140,000 (plus fees)

  • Commercial Property

Call the team on 0113 393 3482 for more information

Auction Date

Wed 10/12/2025

Auction Time

12:00

Auction Venue

Live Stream

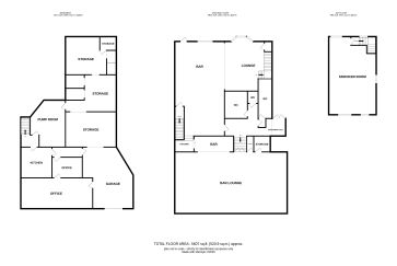
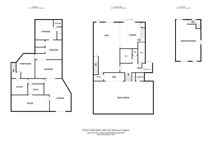
This substantial property has been used as a social club for many years but is now ready for a new chapter. The property should appeal to a wide range of buyers including business owners, investors and developers. We understand the site next door is currently being developed into a mixed use property comprising both retail and residential units demonstrating the strong demand within the area. Internally the property is well presented and comprises a large open plan bar area, pool room, toilets, function room and stage to the ground floor with a snooker room to the first floor. The cellar / lower ground floor comprises a kitchen, offices, storage rooms. The property is located in the sought after village of Cross Hills in North Yorkshire and enjoys a thriving high street with a number of independent shops, bars and restaurants. Interested parties should be aware that the kitchen units shown in the photo have been removed from the premises.

Lower Ground Floor

Kitchen, offices, storage room

Ground Floor

Bar areas, pool room, function room and stage, changing room and toilets.

First Floor

Snooker room

Additional Information

Local Authority

North Yorkshire

EPC Rating

D

Tenure

Freehold

Charges and Payments

In addition to the deposit Administration Charge: 1.2% inc VAT of the purchase price subject to a minimum of £1,500 inc VAT.

Important Notice to Prospective Buyers:

We draw your attention to the Special Conditions of Sale within the Legal Pack, referring to other charges in addition to the purchase price which may become payable. Such costs may include Search Fees, reimbursement of Sellers costs and Legal Fees, and Transfer Fees amongst others.

Additional Fees

Administration Charge - See above

Disbursements - Please see the legal pack for any disbursements listed that may become payable by the purchaser on completion.

View Larger Map

Disclaimer: The map preview provided above is for general guidance only and may not accurately reflect the exact location or surrounding buildings. Prospective buyers and interested parties are strongly advised to independently verify the precise location and surroundings before bidding.