For Sale By Auction | 12:00, 10 December 2025 | Lot 10

127 St. Margarets Road, Bradford, West Yorkshire BD7 2BU

*Guide | £90,000 (plus fees)

  • Terraced House
  • 4 Bedrooms

Call the team on 0113 393 3482 for more information

Auction Date

Wed 10/12/2025

Auction Time

12:00

Auction Venue

Live Stream

This four bedroom through terrace property with rear yard is offered for sale via traditional auction. The property does require renovations throughout, but would make a great project or addition to a rental portfolio. Lidget Green is a highly sought after location with close proximity to the array of shops in and around the local village including supermarkets, health centres, restaurants, banks and many more. Also only a few miles from the motorway networks and situated in the middle of bus routes to Leeds, Bradford and beyond.

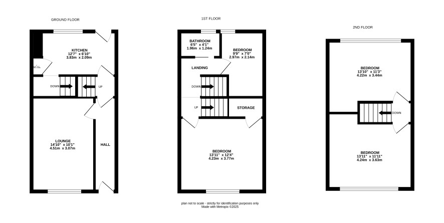
Lower Ground Floor

Cellar.

Ground Floor

Lounge and kitchen.

First Floor

Two bedrooms and bathroom.

Second Floor

Two bedrooms.

Externally

Rear yard.

Additional Information

Council Tax

Band A.

EPC

Rating C.

Tenure

Freehold.

Charges & Payments

In addition to the deposit Administration Charge: 1.2% inc VAT of the purchase price subject to a minimum of £1,500 inc VAT. Buyer’s Premium: £1,200 inc VAT.

Important Notice to Prospective Buyers:

We draw your attention to the Special Conditions of Sale within the Legal Pack, referring to other charges in addition to the purchase price which may become payable. Such costs may include Search Fees, reimbursement of Sellers costs and Legal Fees, and Transfer Fees amongst others.

Additional Fees

Administration Charge - See above

Disbursements - Please see the legal pack for any disbursements listed that may become payable by the purchaser on completion.

View Larger Map

Disclaimer: The map preview provided above is for general guidance only and may not accurately reflect the exact location or surrounding buildings. Prospective buyers and interested parties are strongly advised to independently verify the precise location and surroundings before bidding.