For Sale By Auction | 12:00, 04 February 2026

Cinema House , Doncaster Road , Wakefield , West Yorkshire WF1 5HL

*Guide | £275,000 (plus fees)

  • Warehouse

Call the team on 0113 393 3482 for more information

Auction Date

Wed 04/02/2026

Auction Time

12:00

Auction Venue

Live Stream

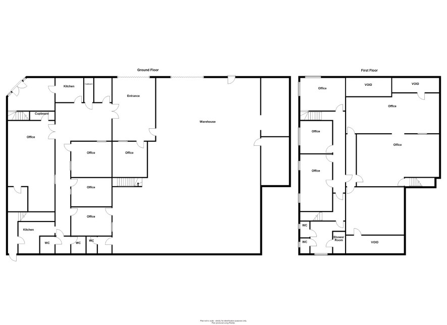
This substantial premises totals approximately 6,080 sq ft (564 sq m) and currently comprises a mix of both warehouse and office space at ground and first floor levels. The property comes with two roller shutter doors (although one currently covers some of the office space) and ample parking externally. It is within close proximity of the much improved Wakefield Trinity Stadium and less than mile to the South of Wakefield city centre.

Ground Floor

Warehouse, offices, kitchen and WCs.

First Floor

Office spaces and WCs.

Additional Information

Local Authority

Wakefield

EPC Rating

C

Tenure

Freehold

Charges and Payments

In addition to the deposit Administration Charge: 1.2% inc VAT of the purchase price subject to a minimum of £1,500 inc VAT.

Important Notice to Prospective Buyers:

We draw your attention to the Special Conditions of Sale within the Legal Pack, referring to other charges in addition to the purchase price which may become payable. Such costs may include Search Fees, reimbursement of Sellers costs and Legal Fees, and Transfer Fees amongst others.

Additional Fees

Administration Charge - See above

Disbursements - Please see the legal pack for any disbursements listed that may become payable by the purchaser on completion.

View Larger Map

Disclaimer: The map preview provided above is for general guidance only and may not accurately reflect the exact location or surrounding buildings. Prospective buyers and interested parties are strongly advised to independently verify the precise location and surroundings before bidding.