For Sale By Auction | 12:00, 04 February 2026 | Lot 26

Apartment 420, The Velvet Mill, Lilycroft Road, Bradford, West Yorkshire BD9 5BN

*Guide | £32,000 (plus fees)

  • Studio

Call the team on 0113 393 3482 for more information

Auction Date

Wed 04/02/2026

Auction Time

12:00

Auction Venue

Live Stream

This studio apartment is ideal for an investor seeking a buy-to-let, having most recently rented for £575pcm and is being sold with vacant possession. This stunning mill conversion provides excellent accommodation that has been beautifully restored. There are character features throughout the building, including exposed stone, columns, high ceilings and large windows. It’s located in Bradford, 1.5 miles north west of the city centre. There are excellent bus routes on the doorstep and Frizinghall train station is only a five minute drive away. It’s also conveniently positioned for Lister Park, Bradford Royal Infirmary and local shops. Lease Information Years remaining on Lease: 127 Years. Service Charge: £1,800 per annum. Ground Rent: £150 per annum.

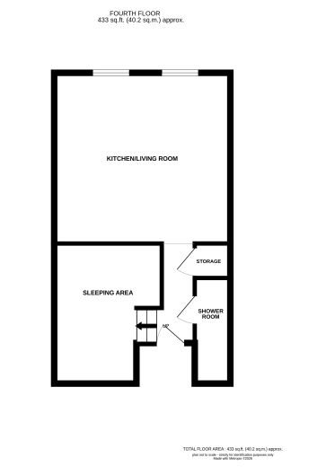
Fourth Floor

Living room/kitchen, sleeping area and bathroom

Additional Information

Council Tax

Bradford - Band A

EPC Rating

D

Tenure

Leasehold

Disclaimer

Any information in relation to the length of lease, service charge, ground rent and council tax has been confirmed by our sellers. We advise buyers to make their own enquiries through their solicitors to verify that the information provided is accurate and not been subject to any change.

Charges and Payments

In addition to the deposit Administration Charge: 1.2% inc VAT of the purchase price subject to a minimum of £1,500 inc VAT. Searches £300 inc VAT.

Important Notice to Prospective Buyers:

We draw your attention to the Special Conditions of Sale within the Legal Pack, referring to other charges in addition to the purchase price which may become payable. Such costs may include Search Fees, reimbursement of Sellers costs and Legal Fees, and Transfer Fees amongst others.

Additional Fees

Administration Charge - See above

Disbursements - Please see the legal pack for any disbursements listed that may become payable by the purchaser on completion.

View Larger Map

Disclaimer: The map preview provided above is for general guidance only and may not accurately reflect the exact location or surrounding buildings. Prospective buyers and interested parties are strongly advised to independently verify the precise location and surroundings before bidding.