For Sale By Auction | 12:00, 25 March 2026 | Lot 32

56 Greenside, Pudsey, West Yorkshire LS28 8PU

*Guide | £99,000 (plus fees)

  • Terraced House
  • 1 Bedroom

Call the team on 0113 393 3482 for more information

Auction Date

Wed 25/03/2026

Auction Time

12:00

Auction Venue

Live Stream

This one bedroom terrace property with additional loft room, outside space and off stree parking is offered for sale via traditional auction. Whilst the property does require internal renovation, this would make a fantasic project or addition to a rental portfolio. Pudsey Town Centre offers a vast range of local facilities including schools for all ages, shops, cafes, bars and restaurants. Pudsey Park is centrally located in the town and offers a children’s playground and fabulous gardens. Out-of-town shopping on a larger scale is found at the nearby Owlcotes Shopping Centre which offers both Asda and Marks & Spencer Superstore, with bus links and New Pudsey Railway Station also being close by.

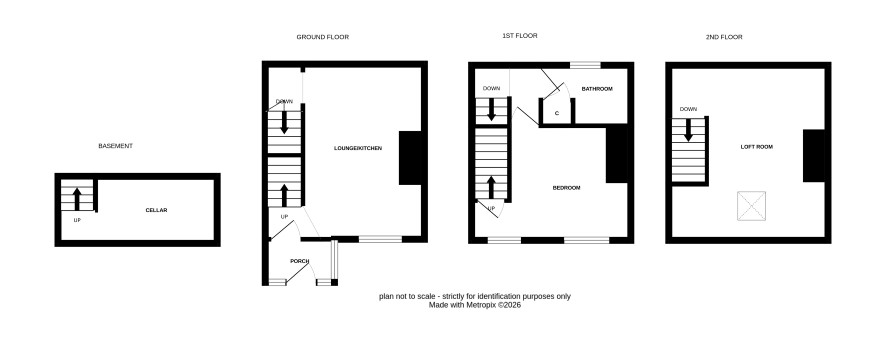
Lower Ground Floor

Cellar

Ground Floor

Lounge/kitchen area

First Floor

Bedroom and bathroom

Second Floor

Loft Room

Externally

Front yard and off street parking

Additional Information

Council Tax

Leeds City Council - Band A

EPC Rating

E

Tenure

Freehold

Charges and Payments

In addition to the deposit Administration Charge: 1.5% inc VAT of the purchase price subject to a minimum of £2,100 inc VAT. Searches £360 inc VAT.

Important Notice to Prospective Buyers:

We draw your attention to the Special Conditions of Sale within the Legal Pack, referring to other charges in addition to the purchase price which may become payable. Such costs may include Search Fees, reimbursement of Sellers costs and Legal Fees, and Transfer Fees amongst others.

Additional Fees

Administration Charge - See above

Disbursements - Please see the legal pack for any disbursements listed that may become payable by the purchaser on completion.

View Larger Map

Disclaimer: The map preview provided above is for general guidance only and may not accurately reflect the exact location or surrounding buildings. Prospective buyers and interested parties are strongly advised to independently verify the precise location and surroundings before bidding.