For Sale By Auction | 12:00, 25 March 2026 | Lot 55

40 St. Lukes Road, Leeds, West Yorkshire LS11 8JA

Sold

  • Terraced House
  • 4 Bedrooms

Call the team on 0113 393 3482 for more information

Auction Date

Wed 25/03/2026

Auction Time

12:00

Auction Venue

Live Stream

This four bedroom through terrace is offered for sale via traditional auction. The property is currently occupied by two tenants paying a gross rental income of £8,840 per annum. There is a verbal agreement between the current landlord and tenants that they will vacate on the 31st March 2026, however please note no formal notice to leave has been issued by tenant or landlord. Buyers are advised to do their own research in this regard. The property does require renovation throughout, but would make a great project or addition to a rental portfolio. Situated within close proximity to motorway links such as the M62 and M1 as well as having easy access into Leeds city centre this property is due to attract the commuter/ professional.

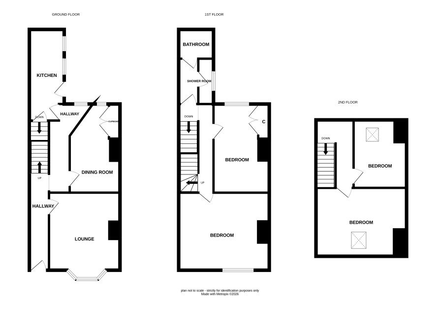
Lower Ground Floor

Cellar

Ground Floor

Lounge, dining room and kitchen

First Floor

Two bedrooms, shower room and bathroom

Second Floor

Two bedrooms

Externally

Rear yard

Additional Information

Council Tax

Leeds City Council - Band B

EPC Rating

D

Tenure

Freehold

Charges and Payments

In addition to the deposit Administration Charge: 1.5% inc VAT of the purchase price subject to a minimum of £2,100 inc VAT. Searches £360 inc VAT

Important Notice to Prospective Buyers:

We draw your attention to the Special Conditions of Sale within the Legal Pack, referring to other charges in addition to the purchase price which may become payable. Such costs may include Search Fees, reimbursement of Sellers costs and Legal Fees, and Transfer Fees amongst others.

Additional Fees

Administration Charge - See above

Disbursements - Please see the legal pack for any disbursements listed that may become payable by the purchaser on completion.

View Larger Map

Disclaimer: The map preview provided above is for general guidance only and may not accurately reflect the exact location or surrounding buildings. Prospective buyers and interested parties are strongly advised to independently verify the precise location and surroundings before bidding.