For Sale By Auction | 12:00, 13 May 2026

42 Armley Lodge Road, Leeds, West Yorkshire LS12 2AT

*Guide | £90,000 (plus fees)

  • Terraced House
  • 4 Bedrooms

Call the team on 0113 393 3482 for more information

Auction Date

Wed 13/05/2026

Auction Time

12:00

Auction Venue

Live Stream

Despite having a modern kitchen, this vacant four bedroom back to back terrace would now benefit from some refurbishment and reconfiguration prior to re let or sold on. The property has a pleasant yard to the front and is offered with a huge price reduction of £40,000 since I was last marketed in April 2026. We have been advised by the seller it was last rented for £10,800 per annum offering strong potential returns for anyone looking to add it to their portfolio. The property is located in Armley just 1.5 miles West of Leeds city centre.

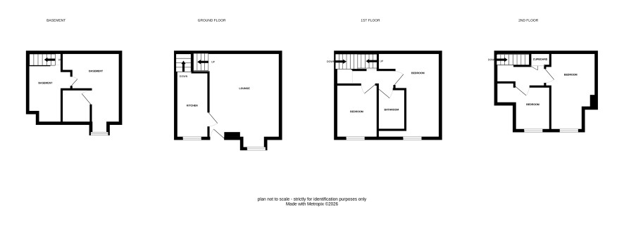
Lower Ground Floor

Basement

Ground Floor

Lounge and kitchen

First Floor

Two bedrooms and a bathroom

Second Floor

Two bedrooms

Externally

Yard to the front

Additional Information

Council Tax

Leeds City Council - Band A

EPC Rating

D

Tenure

Freehold

Charges and Payments

In addition to the deposit Administration Charge: 1.5% inc VAT of the purchase price subject to a minimum of £2,100 inc VAT. Searches £360 inc VAT.

Important Notice to Prospective Buyers:

We draw your attention to the Special Conditions of Sale within the Legal Pack, referring to other charges in addition to the purchase price which may become payable. Such costs may include Search Fees, reimbursement of Sellers costs and Legal Fees, and Transfer Fees amongst others.

Additional Fees

Administration Charge - See above

Disbursements - Please see the legal pack for any disbursements listed that may become payable by the purchaser on completion.

View Larger Map

Disclaimer: The map preview provided above is for general guidance only and may not accurately reflect the exact location or surrounding buildings. Prospective buyers and interested parties are strongly advised to independently verify the precise location and surroundings before bidding.