For Sale By Auction | 12:00, 13 May 2026

97 Grove Lane, Leeds, West Yorkshire LS6 4AL

*Guide | £165,000 (plus fees)

  • Semi-Detached House
  • 3 Bedrooms

Call the team on 0113 393 3482 for more information

Auction Date

Wed 13/05/2026

Auction Time

12:00

Auction Venue

Live Stream

This three bedroom semi detached family home is sure to appeal to those looking for a property they can add value to or to add to their rental portfolio. The property is sold with long-standing tenants in situ, who are paying £770pcm. Internally, the property is in good condition but it could benefit from some cosmetic improvements. Situated in this highly convenient location, just a few minutes from parkland, amenities and excellent schools on the doorstep. It has brilliant access to Meanwood, Headingley and the Leeds City Centre. Interested parties should note that the property is showing signs of structural movement, so buyers are advised to do their own research in this regard.

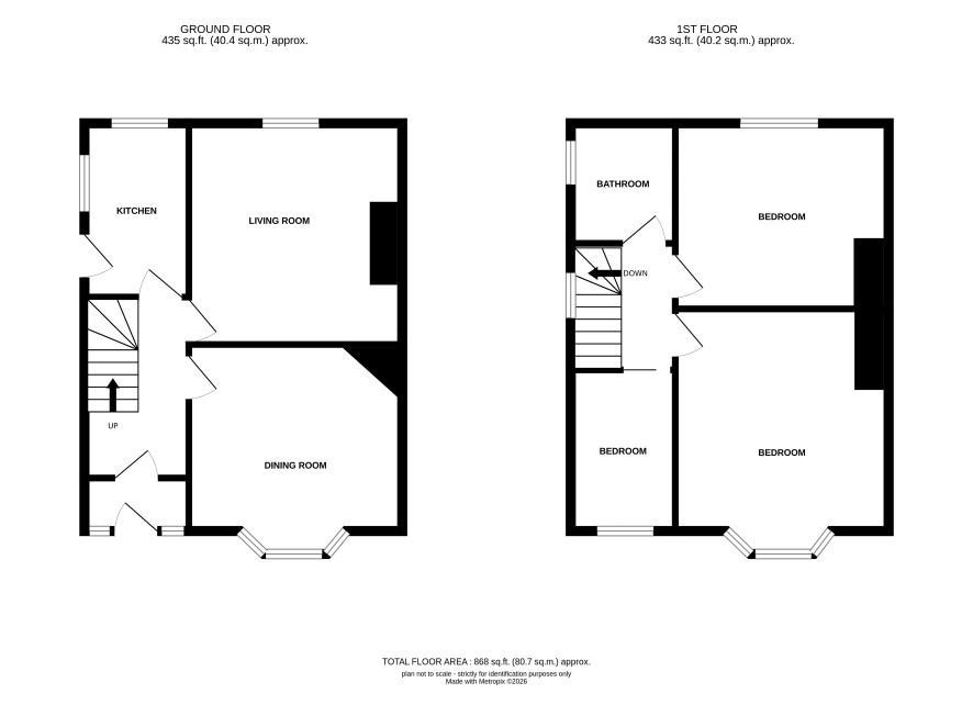
Ground Floor

Kitchen, living room and dining room.

First Floor

Three bedrooms and bathroom.

Externally

Gardens to the front and rear.

Additional Information

Council Tax

Band C.

EPC Rating

D.

Tenure

Freehold.

Charges & Payments

In addition to the deposit Administration Charge: 1.5% inc VAT of the purchase price subject to a minimum of £2,100 inc VAT.

Important Notice to Prospective Buyers:

We draw your attention to the Special Conditions of Sale within the Legal Pack, referring to other charges in addition to the purchase price which may become payable. Such costs may include Search Fees, reimbursement of Sellers costs and Legal Fees, and Transfer Fees amongst others.

Additional Fees

Administration Charge - See above

Disbursements - Please see the legal pack for any disbursements listed that may become payable by the purchaser on completion.

View Larger Map

Disclaimer: The map preview provided above is for general guidance only and may not accurately reflect the exact location or surrounding buildings. Prospective buyers and interested parties are strongly advised to independently verify the precise location and surroundings before bidding.