For Sale By Auction | 12:00, 13 May 2026

Flats 1-3, 70 Austhorpe Road, Leeds, West Yorkshire LS15 8DZ

*Guide | £215,000 (plus fees)

  • Terraced House
  • 3 Bedrooms

Call the team on 0113 393 3482 for more information

Auction Date

Wed 13/05/2026

Auction Time

12:00

Auction Venue

Live Stream

This spacious terrace property converted into three self-contained one bedroom apartments is offered for sale via traditional auction. The property is currently fully occupied generating a gross rental income of £25,500 per annum making this a fantastic addition to a rental portfolio. The property is ideally located close to the heart of Crossgates and within walking distance to the train station, local shops and restaurants. We have been advised that each tenant pays their council tax and water directly, electricity is recharged to the tenants via pay as you go meters and the landlord pays for the gas. The garage to the rear of the property is let out separately with the income generated included in the £25,500 previously mentioned.

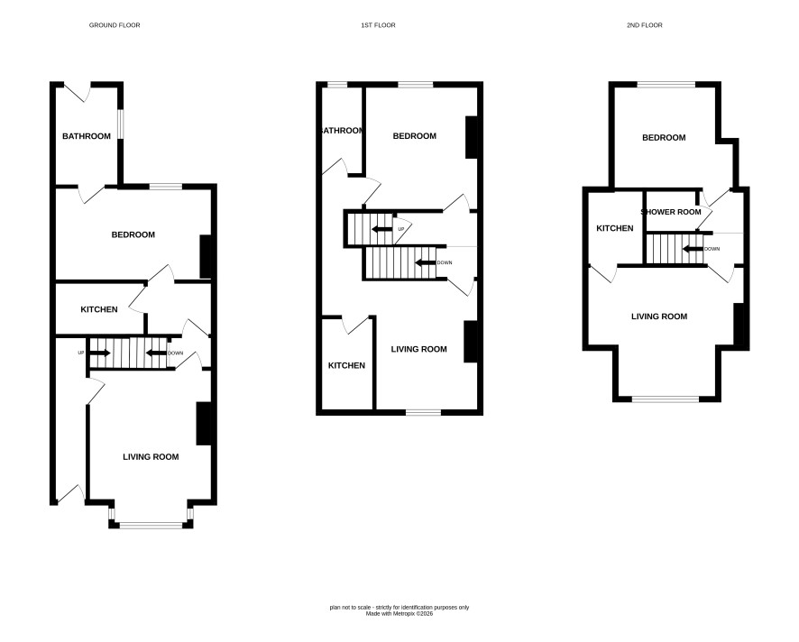
Ground Floor

Living room, kitchen, bedroom and bathroom

First Floor

Living room, kitchen, bedroom and bathroom

Second Floor

Living room, kitchen, bedroom and bathroom

Externally

Garage and garden to the rear, yard to the front

Additional Information

Council Tax

Leeds City Council - Each Flat Band A

EPC Ratings

Flat 1: E Flat 2: D Flat 3: D

Tenure

Freehold

Charges and Payments

In addition to the deposit Administration Charge: 1.5% inc VAT of the purchase price subject to a minimum of £2,100 inc VAT. Searches £360 inc VAT.

Important Notice to Prospective Buyers:

We draw your attention to the Special Conditions of Sale within the Legal Pack, referring to other charges in addition to the purchase price which may become payable. Such costs may include Search Fees, reimbursement of Sellers costs and Legal Fees, and Transfer Fees amongst others.

Additional Fees

Administration Charge - See above

Disbursements - Please see the legal pack for any disbursements listed that may become payable by the purchaser on completion.

View Larger Map

Disclaimer: The map preview provided above is for general guidance only and may not accurately reflect the exact location or surrounding buildings. Prospective buyers and interested parties are strongly advised to independently verify the precise location and surroundings before bidding.