For Sale By Auction | 14:00, 12 December 2018 | Lot 14

49 Hanover Square, LS3 1BQ

Sold £275,000

  • Terraced House
  • 5 Bedrooms
  • Tenure: Freehold

Call the team on 0113 393 3482 for more information

Auction Date

Wed 12/12/2018

Auction Time

14:00

Auction Venue

Norman Hunter Banqueting Suite Elland Road Stadium, Leeds, LS11 0ES

Development opportunity! Planning permission granted for conversion to form two self-contained flats plus a single storey rear extension to form a self-contained unit. Full details can be viewed on the Leeds planning portal under application number 16/0594/FU and 17/03913/FU. Currently a five bedroom through terrace with two kitchens and two bathrooms that has been lived in by the same family for almost forty years. This period property overlooks lovely green parkland, is conveniently situated only a short distance from Leeds city centre, the universities and hospitals and is ideal for either private occupation or investment/development.

Tenure

Freehold

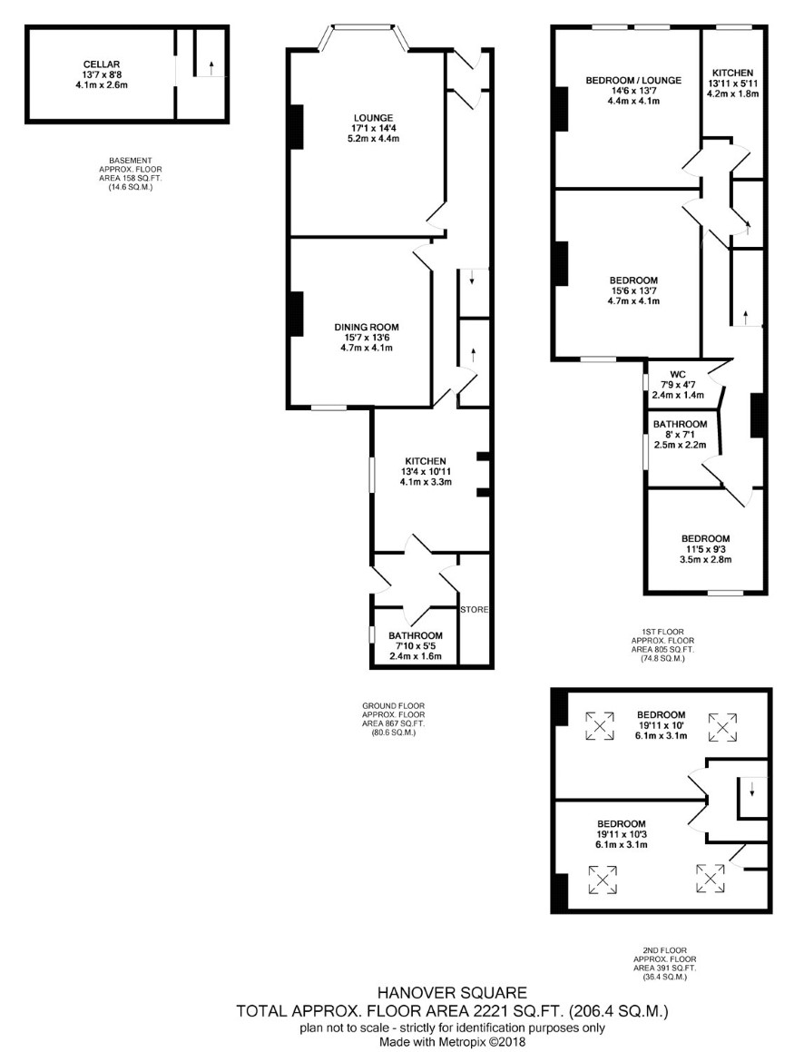
Basement

Storage

Ground Floor

Entrance hall, living room, dining room, kitchen and bathroom

First Floor

Three bedrooms, bathroom with separate WC , kitchen

Second Floor

Two further bedrooms

Externally

Yard and garage to the rear

Charges and Payments

In addition to the deposit Administration Charge: 0.6% inc VAT of the purchase price subject to a minimum of £900 inc VAT. Search Fees: £200 Inc VAT For more details please see the legal pack.

Energy Efficiency Rating (EPC)

Current Rating E

Local Authority

Leeds City Council

Important Notice to Prospective Buyers:

We draw your attention to the Special Conditions of Sale within the Legal Pack, referring to other charges in addition to the purchase price which may become payable. Such costs may include Search Fees, reimbursement of Sellers costs and Legal Fees, and Transfer Fees amongst others.

Additional Fees

Administration Charge - See above

Disbursements - Please see the legal pack for any disbursements listed that may become payable by the purchaser on completion.

View Larger Map

Disclaimer: The map preview provided above is for general guidance only and may not accurately reflect the exact location or surrounding buildings. Prospective buyers and interested parties are strongly advised to independently verify the precise location and surroundings before bidding.