For Sale By Auction | 14:00, 16 May 2019 | Lot 3

89 Heights Lane, Bradford, BD9 6DU

Sold £149,000

  • House (unspecified)
  • Tenure: Freehold

Call the team on 0113 393 3482 for more information

Auction Date

Thu 16/05/2019

Auction Time

14:00

Auction Venue

Leeds Lounge, Level 2, East Stand Elland Road Stadium, Leeds, LS11 0ES

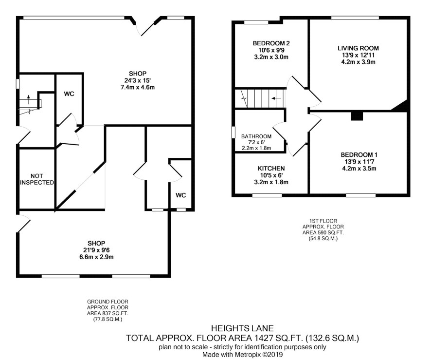
This extended semi-detached property sits on a generous plot and comprises a ground floor retail unit with a two bedroom self-contained flat above. At present, the property is fully let generating £10,940 per annum. The tenant on the ground floor has been in occupation for approximately 20 years and is expected to sign a new lease prior to the auction. The tenant in the flat due to vacate on the 1st June. We have been advised by the letting agent that a buyer could expect to re-let the flat for £375 pcm increasing the current income. The property occupies a prominent location on Heights Lane and is just 0.1 miles from Lynfield Mount hospital and within walking distance of Bradford Royal Infirmary.

Tenure

Freehold

Ground Floor

Shop, kitchen, WC and storage area

First Floor

Flat: two bedrooms, living room, kitchen and bathroom

Externally

Parking to the front and side with a garden and double garage to the rear

Charges and Payments

In addition to the deposit Administration Charge: 0.6% inc VAT of the purchase price subject to a minimum of £900 inc VAT. Disbursements: Any additional disbursements payable by the purchaser are yet to be confirmed by the vendor's solicitor. For more details please see the legal pack.

Guide Price

Guides are provided as an indication of each seller's minimum expectation. They are not necessarily figures which a property will sell for and may change at any time prior to the auction. Each property will be offered subject to a Reserve (a figure below which the Auctioneer cannot sell the property during the auction) which we expect will be set within the Guide Range or no more than 10% above a single figure Guide.

Local Authority

Bradford Metropolitan District Council

Important Notice to Prospective Buyers:

We draw your attention to the Special Conditions of Sale within the Legal Pack, referring to other charges in addition to the purchase price which may become payable. Such costs may include Search Fees, reimbursement of Sellers costs and Legal Fees, and Transfer Fees amongst others.

Additional Fees

Administration Charge - See above

Disbursements - Please see the legal pack for any disbursements listed that may become payable by the purchaser on completion.

View Larger Map

Disclaimer: The map preview provided above is for general guidance only and may not accurately reflect the exact location or surrounding buildings. Prospective buyers and interested parties are strongly advised to independently verify the precise location and surroundings before bidding.