For Sale By Auction | 14:00, 16 May 2019 | Lot 15

8 Top Row, Providence Place, Swillington Common, Leeds, LS15 4LD

Sold £97,000

  • Terraced House
  • 2 Bedrooms
  • Tenure: Freehold

Call the team on 0113 393 3482 for more information

Auction Date

Thu 16/05/2019

Auction Time

14:00

Auction Venue

Leeds Lounge, Level 2, East Stand Elland Road Stadium, Leeds, LS11 0ES

Viewing Times:

Tue 23 Apr

13:15-13:40

Wed 1 May

13:15-13:40

Fri 10 May

13:15-13:40

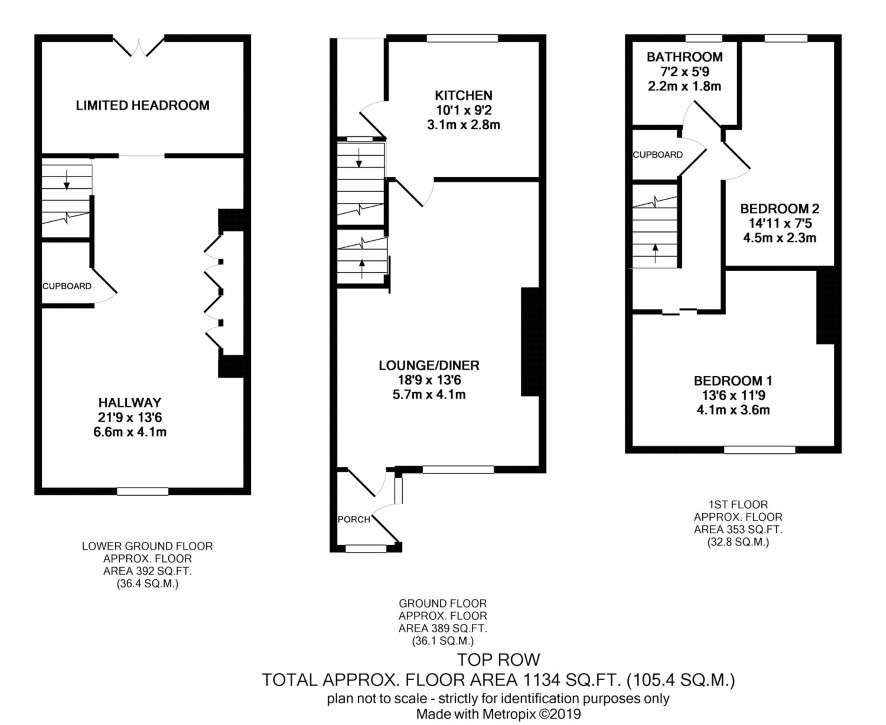
This extended two bedroom through terrace in Swillington Common will appeal to the local landlord or renovator. The property has been well maintained by the current owners but would now benefit from a scheme of modernisation. There is a large room to the lower ground floor featuring high ceilings and with potential to be converted in additional living space. Externally, there is a garden to the front, vehicular access to the rear and a small outhouse. The location provides immediate access to the M1, approximately 2 miles from both Garforth and Crossgates.

Tenure

Freehold

Lower Ground Floor

Large room

Ground Floor

Porch, lounge and dining kitchen

First Floor

Landing, two bedrooms and bathroom

Externally

Front garden and rear store

Charges and Payments

In addition to the deposit Administration Charge: 0.6% inc VAT of the purchase price subject to a minimum of £900 inc VAT. Search Fees: £200 Inc VAT Disbursements: Any additional disbursements payable by the purchaser are yet to be confirmed by the vendor's solicitor. For more details please see the legal pack.

Guide Price

Guides are provided as an indication of each seller's minimum expectation. They are not necessarily figures which a property will sell for and may change at any time prior to the auction. Each property will be offered subject to a Reserve (a figure below which the Auctioneer cannot sell the property during the auction) which we expect will be set within the Guide Range or no more than 10% above a single figure Guide.

Local Authority

Leeds City Council

Important Notice to Prospective Buyers:

We draw your attention to the Special Conditions of Sale within the Legal Pack, referring to other charges in addition to the purchase price which may become payable. Such costs may include Search Fees, reimbursement of Sellers costs and Legal Fees, and Transfer Fees amongst others.

Additional Fees

Administration Charge - See above

Disbursements - Please see the legal pack for any disbursements listed that may become payable by the purchaser on completion.

View Larger Map

Disclaimer: The map preview provided above is for general guidance only and may not accurately reflect the exact location or surrounding buildings. Prospective buyers and interested parties are strongly advised to independently verify the precise location and surroundings before bidding.