For Sale By Auction | 14:00, 16 May 2019 | Lot 27

17 Abbey Court, Horsforth, Leeds, West Yorkshire, LS18 4SA

Sold £133,000

  • Semi-Detached House
  • 1 Bedroom
  • Tenure: Freehold

Call the team on 0113 393 3482 for more information

Auction Date

Thu 16/05/2019

Auction Time

14:00

Auction Venue

Leeds Lounge, Level 2, East Stand Elland Road Stadium, Leeds, LS11 0ES

Viewing Times:

Wed 24 Apr

14:00-14:25

Fri 3 May

14:00-14:25

Tue 7 May

14:00-14:25

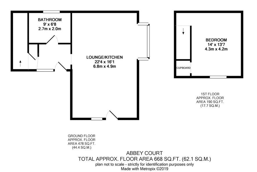
Tucked away in a historical part of Horsforth comes this deceptively spacious semi-detached cottage. Currently, the property is part way through being renovated and will therefore appeal to those looking for a manageable and affordable project. The seller advises us that the property was originally converted from the outbuildings of the neighbouring farmhouse. The layout of the accommodation is unique and features a substantial living kitchen, modern bathroom and double bedroom. Due to the favourable layout (see floorplan) buyers may look to extend the property to the first floor to create additional bedrooms subject to the necessary planning consents.

Tenure

Freehold

Ground Floor

Hall, Living kitchen and bathroom.

First Floor

Bedroom.

Charges & Payments

In addition to the deposit Administration Charge: 0.6% inc VAT of the purchase price subject to a minimum of £900.00 inc VAT. Search Fees: £200 Inc VAT.

Local Authority

Leeds City Council

Important Notice to Prospective Buyers:

We draw your attention to the Special Conditions of Sale within the Legal Pack, referring to other charges in addition to the purchase price which may become payable. Such costs may include Search Fees, reimbursement of Sellers costs and Legal Fees, and Transfer Fees amongst others.

Additional Fees

Administration Charge - See above

Disbursements - Please see the legal pack for any disbursements listed that may become payable by the purchaser on completion.

View Larger Map

Disclaimer: The map preview provided above is for general guidance only and may not accurately reflect the exact location or surrounding buildings. Prospective buyers and interested parties are strongly advised to independently verify the precise location and surroundings before bidding.