For Sale By Auction | 14:00, 10 July 2019 | Lot 5

122 Lady Pit Lane, Leeds, West Yorkshire, LS11 6EE

Sold £169,000

  • Terraced House
  • 7 Bedrooms
  • Tenure: Freehold

Call the team on 0113 393 3482 for more information

Auction Date

Wed 10/07/2019

Auction Time

14:00

Auction Venue

Norman Hunter Banqueting Suite Elland Road Stadium, Leeds, LS11 0ES

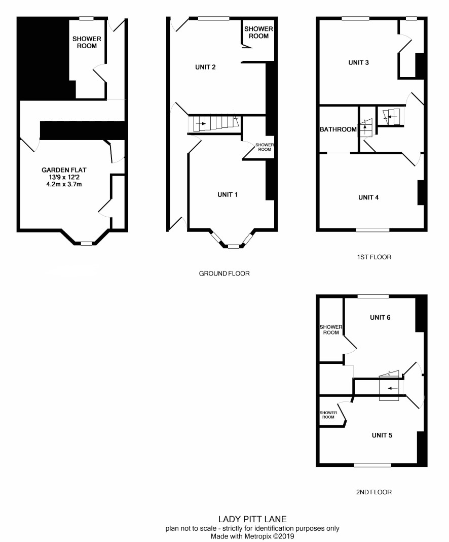
This substantial through terraced property is divided into seven fully managed self-contained units, generating an impressive annual rental income of £32,500. Based on the quoted guide price , that equates to a gross return of 26%. All the flats are separately metered and tenants pay all their own utility bills, with the landlord paying the water rates. The property is located in Beeston, South Leeds with a good range of shops and amenities just a short walk away and Leeds city centre two miles to the north. Please note: A 21 day completion applies to this lot.

Tenure

Freehold

Basement

Bedroom, kitchen and shower room.

Ground Floor

Units 1 and 2.

First Floor

Units 3 and 4.

Second Floor

Units 5 and 6.

Charges & Payments

In addition to the deposit Administration Charge: 0.6% inc VAT of the purchase price subject to a minimum of £900.00 inc VAT. Disbursements: Any additional disbursements payable by the purchaser are yet to be confirmed by the vendors solicitor. For more details please see the legal pack.

Guide Price

Guides are provided as an indication of each seller's minimum expectation. They are not necessarily figures which a property will sell for and may change at any time prior to the auction. Each property will be offered subject to a Reserve (a figure below which the Auctioneer cannot sell the property during the auction) which we expect will be set within the Guide Range or no more than 10% above a single figure Guide.

Local Authority

Leeds City Council

Important Notice to Prospective Buyers:

We draw your attention to the Special Conditions of Sale within the Legal Pack, referring to other charges in addition to the purchase price which may become payable. Such costs may include Search Fees, reimbursement of Sellers costs and Legal Fees, and Transfer Fees amongst others.

Additional Fees

Administration Charge - See above

Disbursements - Please see the legal pack for any disbursements listed that may become payable by the purchaser on completion.

View Larger Map

Disclaimer: The map preview provided above is for general guidance only and may not accurately reflect the exact location or surrounding buildings. Prospective buyers and interested parties are strongly advised to independently verify the precise location and surroundings before bidding.