For Sale By Auction | 12 November 2024 | Lot 56

65 Ledgard Wharf, Mirfield, West Yorkshire

Sold £58,000

  • Property For Sale
  • Leasehold.

Call the team on 0113 393 3482 for more information

Auction Closed

Viewing Times

Please call Auction House West Yorkshire on 0113 393 3482 to arrange a viewing

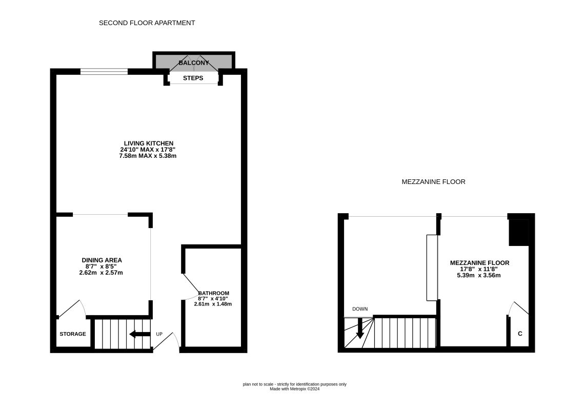
FOR SALE BY ONLINE AUCTION ON TUESDAY 12TH NOVEMBER 2024. BIDDING OPENS 11TH NOVEMBER 2024. This second floor mezzanine apartment with parking and balcony is offered for sale via traditional auction. The apartment is in good condition and would be ready for a tenant to move into with minimal work. Similar apartments in the block have previously been listed for rent at £725PCM which if achieved would reflect at a 19.3% gross return based on the guide price. The apartment block is located a short distance from the centre of Mirfield and within walking distance of the railway station which provides links to Huddersfield, Leeds, Manchester etc. Leasehold information: Lease length - 999 years from 1st July 2005 Whilst Auction House has made best efforts to obtain the ground rent and service charge information we have been unable to do so. Buyers are advised to review the legal pack and do their own research in this regard. EPC Rating: C. Please note: A 14 day completion applies to this lot.

Tenure

Leasehold.

Additional Fees

Buyer's Premium - £1,200 inc VAT

Administration Charge - See above

Disbursements - Please see the legal pack for any disbursements listed that may become payable by the purchaser on completion.