Sold Prior | Lot 8

Ebenezer House, 2-10 St. Johns Street, Bedford, Bedfordshire, MK42 0DH

Sold Prior

  • Commercial Property
  • Tenure: Freehold

Call the team on 01908 030127 for more information

Auction Date

Wed 02/07/2025

Auction Time

13:00

Auction Venue

Livestream

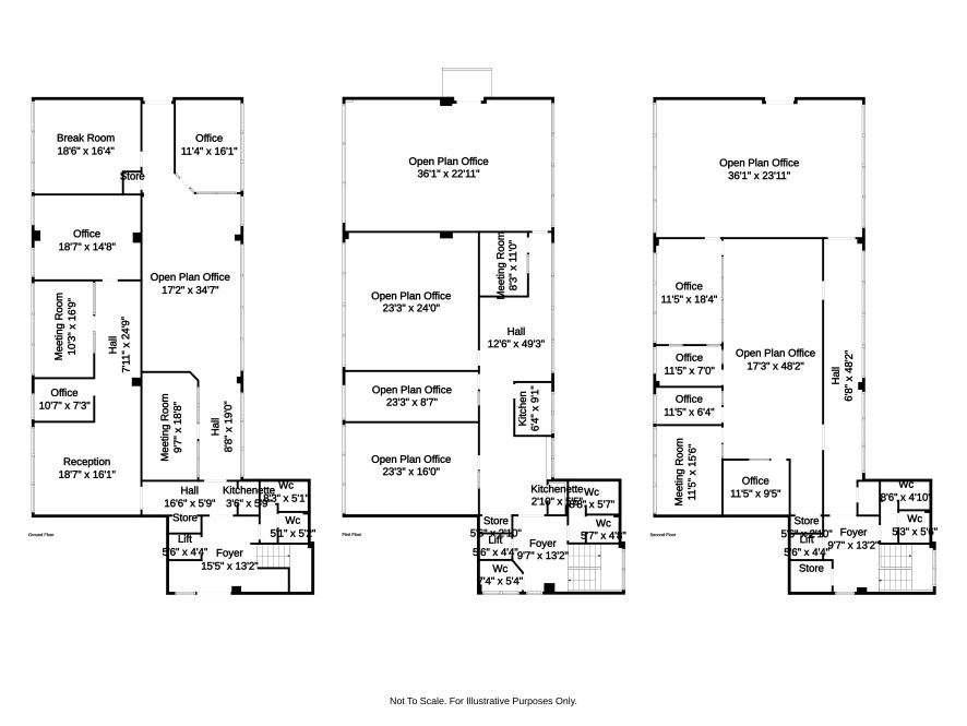
Ebenezer House offers 9000 square feet of commercial office space, Class E. The property is divided over three floors with 23 secure parking spaces.

There is a communal entrance hall with stairs and a lift to the first and second floors. The premises are partially let with seven occupied units and two vacant offices. Currently, the annual income generates £70,940 per annum with the potential to rise to £76,940 once fully occupied. For further details of lease agreements and terms please see the Legal Pack.

Tenure

Freehold

ACCOMMODATION

GROUND FLOOR

Foyer, washrooms, hallway, kitchenette and offices.

FIRST FLOOR

Landing, washrooms and offices.

SECOND FLOOR

Landing, washrooms and offices.

PARKING

There is a private, secure car park with 23 spaces.

LOCATION

Ebenezer House is situated in a prominent town centre location on the corner of St Johns Street and Cardington Road. A 20-minute walk from Bedford Station, there is good access and amenities close by.

Local Authority

Bedford Borough Council

Important Notice to Prospective Buyers:

We draw your attention to the Special Conditions of Sale within the Legal Pack, referring to other charges in addition to the purchase price which may become payable. Such costs may include Search Fees, reimbursement of Sellers costs and Legal Fees, and Transfer Fees amongst others.

Additional Fees

Buyer's Premium - The purchaser will be required to pay an administration charge of £10,200 (£8,500 plus VAT).

Administration Charge - The purchaser will be required to pay an administration charge of £1,800 (£1,500 plus VAT).

Disbursements - Please see the legal pack for any disbursements listed that may become payable by the purchaser on completion.

View Larger Map

Disclaimer: The map preview provided above is for general guidance only and may not accurately reflect the exact location or surrounding buildings. Prospective buyers and interested parties are strongly advised to independently verify the precise location and surroundings before bidding.