For Sale By Auction | 12:00, 20 February 2020 | Lot 22

The Railway Inn, 104 London Road, Carlisle, Cumbria, CA1 2PE

Sold After

  • Mixed Use
  • 9 Bedrooms
  • Tenure: See Legal Pack

Call the team on 01228 510 552 for more information

Auction Date

Thu 20/02/2020

Auction Time

12:00

Auction Venue

Carlisle Racecourse Durdar Road, Carlisle, CA2 4TS

Viewing Times:

Sat 25 Jan

14:00-14:30

Sat 1 Feb

14:00-14:30

Sat 8 Feb

11:00-11:30

Sat 15 Feb

14:00-14:30

Wed 19 Feb

11:30-12:00

Development property - former pub with car park

A substantial, detached sandstone building with car park at rear, the former Railway Inn, occupying a prominent site on this main arterial road a mile south of the City centre. The property, a Grade II listed building, has previously had planning consent for conversion to retail and residential use. This has now lapsed and interested parties should make their own enquiries to the planning department at Carlisle City Council. The adaptable accommodation is on four floors and there is a car park at the rear where there used to be several lock up garages which have been demolished.

Tenure

See Legal Pack

Ground Floor

Vestibule; Main Bar areas - 46'9 x 31'6 overall; Rear Kitchen - 11' x 11'; Gents WCs; Ladies WCs.

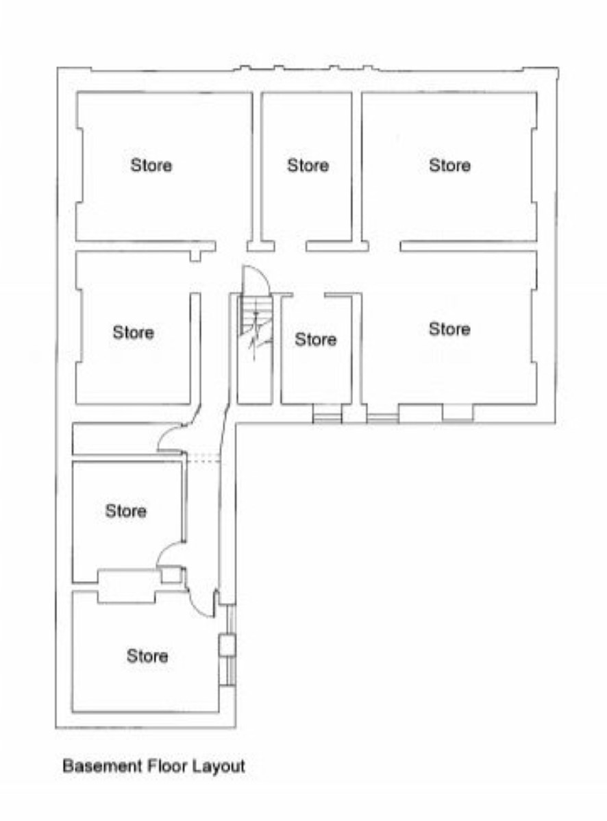
Basement

6 rooms - 17'3 x 15'; 15' x 11'3; 15' x 9'; 15' x 13'3; 16'9 x 13'3; 9'6 x 7'.

First Floor

6 rooms off the main landing - 15' x 12'; 18' x 15'3; 15'3 x 10'3; 17'6 x 15'3; 15'3 x 14'6; 11'3 x 11'. Rear landing - WC; Kitchen - 14'9 x 12'3; Room - 11' x 11'.

Second Floor

4 rooms - 18'6 x 17'3 max; 12' x 9'3; 11' x 8'6; 18'6 x 14'6.

Outside

Double gates provide vehicular access to the car park at the rear where there used to be several lock up garages which have been demolished.

VAT

VAT is payable on the purchase price.

Viewing is entirely at your own risk

This property is boarded up. If you wish to view then please bring a torch. Some floorboards are missing.

Energy Efficiency Rating (EPC)

Current Rating N/A

Services

Interested parties are invited to make their own enquiries to the relevant authorities as to the availability of the services.

Local Authority

Carlisle City Council

Important Notice to Prospective Buyers:

We draw your attention to the Special Conditions of Sale within the Legal Pack, referring to other charges in addition to the purchase price which may become payable. Such costs may include Search Fees, reimbursement of Sellers costs and Legal Fees, and Transfer Fees amongst others.

Additional Fees

Administration Charge - £900 inc VAT payable on exchange of contracts.

Disbursements - Please see the legal pack for any disbursements listed that may become payable by the purchaser on completion.

View Larger Map

Disclaimer: The map preview provided above is for general guidance only and may not accurately reflect the exact location or surrounding buildings. Prospective buyers and interested parties are strongly advised to independently verify the precise location and surroundings before bidding.