For Sale By Auction | 12:00, 29 October 2020 | Lot 24

Upper Floors, 14 Devonshire Street, Penrith, Cumbria, CA11 7SR

Sold £56,000

  • Residential Development
  • 3 Bedrooms
  • Tenure: See Legal Pack

Call the team on 01228 510 552 for more information

Auction Date

Thu 29/10/2020

Auction Time

12:00

Auction Venue

Online Auction Online Auction,

Residential development property

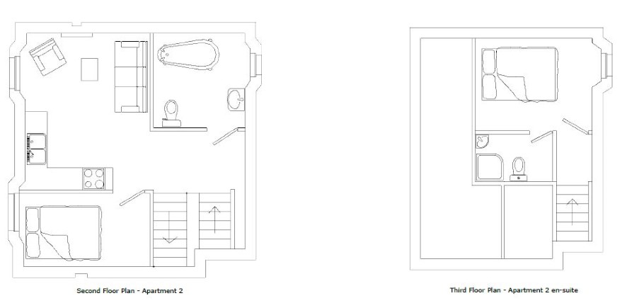
The upper floors of a town centre property with planning permission for two flats with access from Little Dockray at the rear. Planning was granted on 20th August 2020 (ref 20/0391) by Eden District Council for two apartments. See the floorplans on line for the proposed layouts which comprise:-

Tenure

See Legal Pack

Apartment 1 (on the first floor)

Sitting Room with kitchen area; Bedroom; Shower Room with WC.

Apartment 2 (on the second floor)

Sitting Room with kitchen area; Bedroom; Bathroom with WC.

Apartment 2 (on the third floor)

Bedroom with En-suite Shower Room & WC.

Long Leasehold Tenure

New 999 years lease

Viewing

Please telephone 01228 510552

Energy Efficiency Rating (EPC)

Current Rating E

Services

Interested parties are invited to make their own enquiries to the relevant authorities as to the availability of the services.

Local Authority

Eden District Council

Important Notice to Prospective Buyers:

We draw your attention to the Special Conditions of Sale within the Legal Pack, referring to other charges in addition to the purchase price which may become payable. Such costs may include Search Fees, reimbursement of Sellers costs and Legal Fees, and Transfer Fees amongst others.

Additional Fees

Administration Charge - £900 inc VAT payable on exchange of contracts.

Disbursements - Please see the legal pack for any disbursements listed that may become payable by the purchaser on completion.

View Larger Map

Disclaimer: The map preview provided above is for general guidance only and may not accurately reflect the exact location or surrounding buildings. Prospective buyers and interested parties are strongly advised to independently verify the precise location and surroundings before bidding.