For Sale By Auction | 12:00, 25 May 2023 | Lot 45

Brooklyn Place Cottage, Beckermet, Cumbria CA21 2XB

Sold £72,000

  • Detached House
  • 2 Bedrooms
  • Tenure: See Legal Pack

Call the team on 01228 510 552 for more information

Auction Date

Thu 25/05/2023

Auction Time

12:00

Auction Venue

The Halston Hotel, 20-34 Warwick Road • CA1 1AB

Viewing Times:

Sat 13 May

10:00-10:30

Sat 20 May

14:30-15:00

Tue 23 May

10:00-10:30

Detached village property for renovation

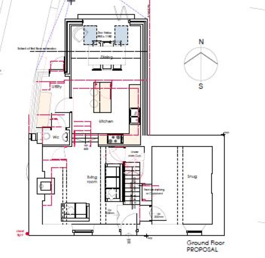
A detached property with pleasant rear garden situated in this sought after village some 8 miles south of Whitehaven on the westerly fringe of the Lake District National Park and close to the coast. The property has been unoccupied for some time and is in need of full renovation. It has planning consent (Ref 4/22/2023/OF1) from Copeland Borough Council for ''removal of existing rear extensions and erection of part two storey and part single storey rear extension''. The proposed layout plans are available on our website and provide for two reception rooms, dining kitchen, utility room and cloakroom with WC on the ground floor and three bedrooms and bathroom upstairs.

Tenure

See Legal Pack

Proposed ground floor accommodation

Living Room Snug Dining Kitchen Utility Room Cloakroom with WC

Proposed first floor accommodation

Three bedrooms Bathroom

Outside

Large rear garden - see title plan. Brooklyn Place to the east of this cottage has a right of way over the rear garden.

NB

Please note that there is no off road parking with this property. Whilst a separate garage is shown on the planning application, that is in different ownership and is NOT included in this sale.

OPEN VIEWINGS

Sat 13th May 10am-10.30am Sat 20th May 2.30pm-3pm Tues 23rd May 10am-10.30am

Energy Efficiency Rating (EPC)

Current Rating TBC

Services

Interested parties are invited to make their own enquiries to the relevant authorities as to the availability of the services.

Local Authority

Copeland Borough Council

Solicitors

HFT Gough & CO, 38-42 Lowther Street, Ref: Suzanne Roberts, Tel: 01946 692461

Important Notice to Prospective Buyers:

We draw your attention to the Special Conditions of Sale within the Legal Pack, referring to other charges in addition to the purchase price which may become payable. Such costs may include Search Fees, reimbursement of Sellers costs and Legal Fees, and Transfer Fees amongst others.

Additional Fees

Administration Charge - £1200 inc VAT payable on exchange of contracts.

Disbursements - Please see the legal pack for any disbursements listed that may become payable by the purchaser on completion.

View Larger Map

Disclaimer: The map preview provided above is for general guidance only and may not accurately reflect the exact location or surrounding buildings. Prospective buyers and interested parties are strongly advised to independently verify the precise location and surroundings before bidding.