Withdrawn | Lot 40

1, 1A, 2 & 2A The Park, Park Road, Scotby, Cumbria CA4 8AS

Withdrawn

  • Block of Apartments
  • 9 Bedrooms

Call the team on 01228 510 552 for more information

Auction Date

Thu 25/05/2023

Auction Time

12:00

Auction Venue

The Halston Hotel, 20-34 Warwick Road • CA1 1AB

A block of FOUR flats on the edge of Scotby Village

A detached block of FOUR flats on the outskirts of the popular village of Scotby to the East of Carlisle City Centre. With popular amenities including Primary School a short walk away. Three flats have 2 bedrooms, and one flat is a maisonette with 3 bedrooms. One flat is currently tenanted on an AST at £475pcm. In good order, the vacant flats are ready for immediate occupation.

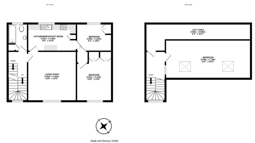
Flat 1

Porch Lounge 12'9 x 11'9 Kitchen 12'9 x 11' Bedroom 12'6 x 11' Bedroom 10'9 x 10'9 Bathroom

Flat 1A

Hall with stairs Lounge 12'9 x 11'9 Kitchen 12'9 x 11' Bedroom 12'6 x 11' Bedroom 10'9 x 10'9 Bathroom

Flat 2

Porch Lounge 14' x 13'9 Kitchen 14'9 x 7'9 Bedroom 13'9 x 10'3 Bedroom 10'6 x 7'9 Shower Room

Flat 2A

Hall with stairs Lounge 15'3 x 14'6 Kitchen 14'9 x 8'3 Bedroom 15' x 10'9 Bedroom 10'9 x 8'3 Bathroom Stairs to 2nd Floor Bedroom 25'6 max x 11'9max

Outside

Gardens and parking

Energy Efficiency Rating (EPC)

Current Rating DDCE

Services

Interested parties are invited to make their own enquiries to the relevant authorities as to the availability of the services.

Local Authority

Carlisle City Council

Solicitors

Burnetts, 3c Lakeland Business Park, Ref: Kathryn Hill, Tel: 01900 510366

Important Notice to Prospective Buyers:

We draw your attention to the Special Conditions of Sale within the Legal Pack, referring to other charges in addition to the purchase price which may become payable. Such costs may include Search Fees, reimbursement of Sellers costs and Legal Fees, and Transfer Fees amongst others.

Additional Fees

Administration Charge - £1200 inc VAT payable on exchange of contracts.

Disbursements - Please see the legal pack for any disbursements listed that may become payable by the purchaser on completion.

View Larger Map

Disclaimer: The map preview provided above is for general guidance only and may not accurately reflect the exact location or surrounding buildings. Prospective buyers and interested parties are strongly advised to independently verify the precise location and surroundings before bidding.