For Sale By Auction | 12:00, 19 October 2023 | Lot 47

47 Market Street, Flookburgh, Grange-Over-Sands, Cumbria LA11 7JS

Sold £85,000

  • Terraced House
  • 2 Bedrooms
  • Tenure: See Legal Pack

Call the team on 01228 510 552 for more information

Auction Date

Thu 19/10/2023

Auction Time

12:00

Auction Venue

The Halston Hotel, 20-34 Warwick Road • CA1 1AB

Terraced property in need of modernisation

Two bedroom property located in the popular village of Flookburgh. The property is in need of modernisation and comprises: hall, reception room and kitchen to the ground floor, lounge and bathroom to the first floor and 2 bedrooms to the second floor.

Tenure

See Legal Pack

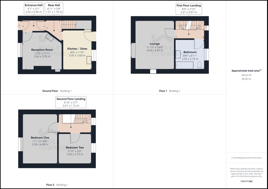
Ground Floor

Hall Reception Room 12' x 11' Kitchen 8'6 x 11'9

First Floor

Lounge 11'11 x 14'8 Bathroom 8'8 x 8'11

Second Floor

Bedroom One 11'1 x 14'8 Bedroom Two 9'10 x 9'

Viewing

To view, please telephone Poole Townsend on 015395 33316

Energy Efficiency Rating (EPC)

Current Rating E

Services

Interested parties are invited to make their own enquiries to the relevant authorities as to the availability of the services.

Local Authority

South Lakeland District Council

Solicitors

Poole Townsend, 69-75 Duke Street, Ref: Rio Smith, Tel: 01229 811811

Offered in association with

Poole Townsend

Important Notice to Prospective Buyers:

We draw your attention to the Special Conditions of Sale within the Legal Pack, referring to other charges in addition to the purchase price which may become payable. Such costs may include Search Fees, reimbursement of Sellers costs and Legal Fees, and Transfer Fees amongst others.

Additional Fees

Administration Charge - £1200 inc VAT payable on exchange of contracts.

Disbursements - Please see the legal pack for any disbursements listed that may become payable by the purchaser on completion.

View Larger Map

Disclaimer: The map preview provided above is for general guidance only and may not accurately reflect the exact location or surrounding buildings. Prospective buyers and interested parties are strongly advised to independently verify the precise location and surroundings before bidding.