For Sale By Auction | 12:00, 07 December 2023 | Lot 5

71 Raglan Street, Barrow-In-Furness, Cumbria LA14 2AP

Sold £59,000

  • Commercial Development
  • 3 Bedrooms
  • Tenure: See Legal Pack

Call the team on 01228 510 552 for more information

Auction Date

Thu 07/12/2023

Auction Time

12:00

Auction Venue

The Halston Hotel, 20-34 Warwick Road • CA1 1AB

Viewing Times:

Fri 1 Dec

10:00-10:30

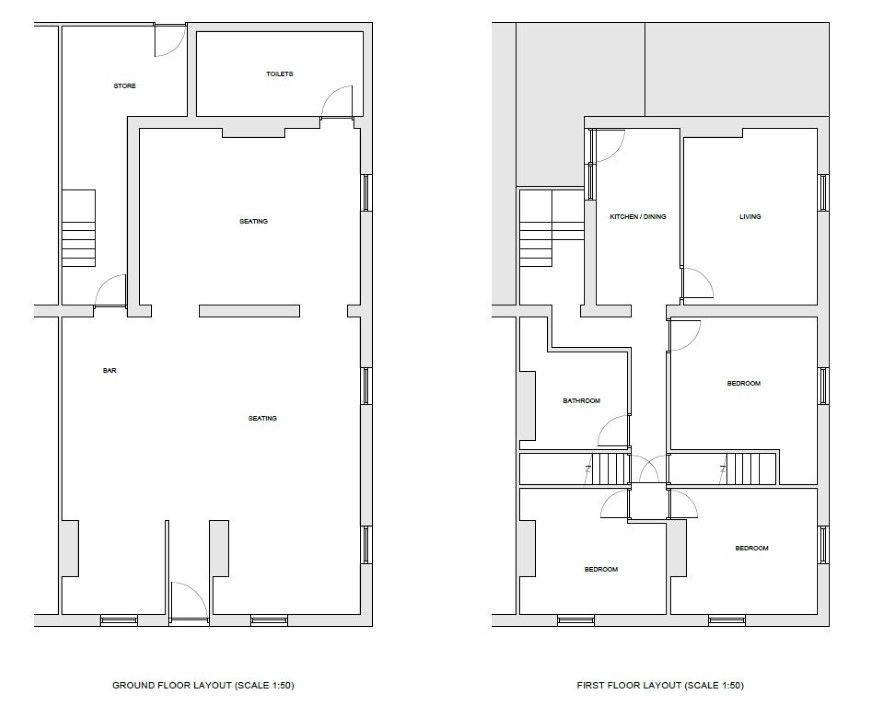
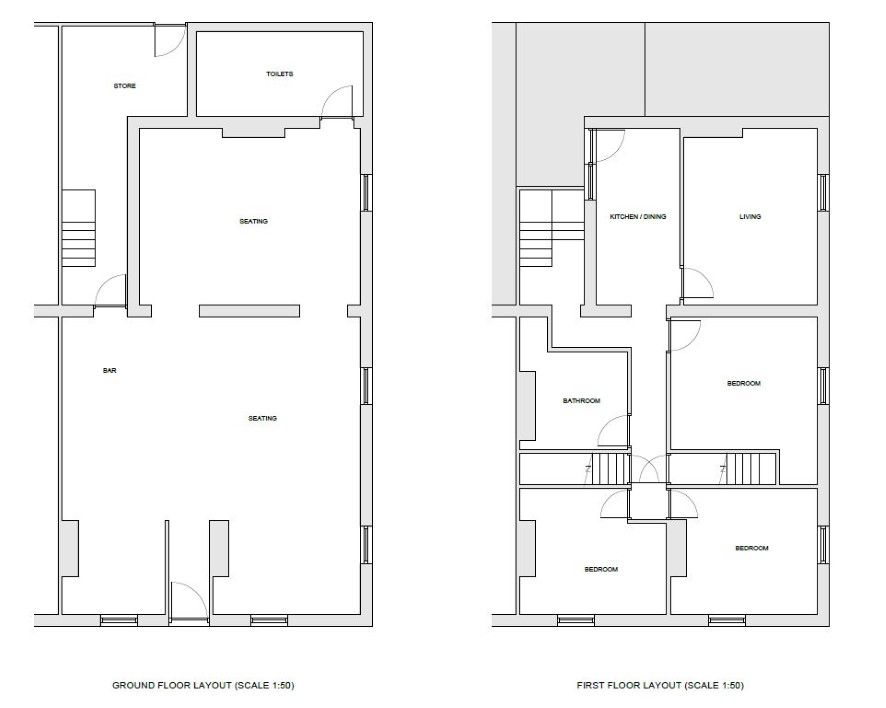
Development Opportunity of Former Public House with accommodation above

A former public house with accommodation above, stripped back and ready for renovation/development. The current layout comprises, ground floor bar with seating areas and toilets. The first floor has lounge, kitchen, three bedrooms and bathroom. Planning Permission is currently pending for refurbishment to the existing public house, plus conversion of the first floor and attic space into a 6 bed HMO. (B20/2023/0489)

Tenure

See Legal Pack

Energy Efficiency Rating (EPC)

Current Rating C

Services

Interested parties are invited to make their own enquiries to the relevant authorities as to the availability of the services.

Local Authority

Barrow in Furness Borough Council

Solicitors

Brown Barron, 65 Duke Street, Ref: Matt Viner, Tel: 01229 828814

Important Notice to Prospective Buyers:

We draw your attention to the Special Conditions of Sale within the Legal Pack, referring to other charges in addition to the purchase price which may become payable. Such costs may include Search Fees, reimbursement of Sellers costs and Legal Fees, and Transfer Fees amongst others.

Additional Fees

Buyer's Premium - £1800 inc VAT payable on exchange of contracts.

Administration Charge - £1200 inc VAT payable on exchange of contracts.

Disbursements - Please see the legal pack for any disbursements listed that may become payable by the purchaser on completion.

View Larger Map

Disclaimer: The map preview provided above is for general guidance only and may not accurately reflect the exact location or surrounding buildings. Prospective buyers and interested parties are strongly advised to independently verify the precise location and surroundings before bidding.