For Sale By Auction | 12:00, 04 April 2024 | Lot 24

Kentsea, Hampsfell Road, Grange-Over-Sands, Cumbria LA11 6BE

Sold £139,000

  • Maisonette
  • 3 Bedrooms
  • Tenure: See Legal Pack

Call the team on 01228 510 552 for more information

Auction Date

Thu 04/04/2024

Auction Time

12:00

Auction Venue

The Halston Hotel, 20-34 Warwick Road • CA1 1AB

Viewing Times:

Sat 8 Jul

13:00-13:30

Wed 12 Jul

10:00-10:30

Spacious three bedroom maisonette

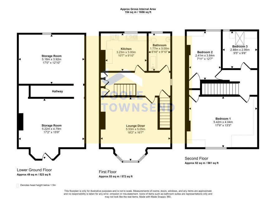
A spacious three bedroom maisonette presented over the first and second floors in an elevated position overlooking Grange over Sands. With private access the accommodation would benefit from some updating and comprises: lounge diner, kitchen and bathroom on the first floor, and three bedrooms on the second floor. With the added benefit from a dry cellar providing 2 useful storage spaces with potential to be developed (subject to the necessary consents) Spacious garden and parking.

Tenure

See Legal Pack

First Floor

Access is to the rear of the property with steps leading to the private entrance,

Lounge Diner 18'2 x 16'7

with bay window with stunning views across the Estuary and towards Morecambe Bay.

Kitchen 10'7 x 9'10

with a range of wall and base units, and work surface incorporating stainless steel sink, spaces for appliances including plumbing for washing machine.

Bathroom 9'10 x 5'10

A three piece white suite comprising bath with wall mounted shower, WC and wash hand basin.

Second Floor Bedrooms

Bedroom 17'9 x 13'3 Bedroom 12'7 x 7'11 Bedroom 9'8 x 9'5

Cellars

Room 1 - 17'2 x 15'9 Room 2 - 17' x 12'10 with light and power

Outside

Spacious and varied garden, with pond, greenhouse and sheds. Off street parking.

Viewing

To arrange a viewing please contact Poole Townsend Estate Agents on 015395 33316

Energy Efficiency Rating (EPC)

Current Rating G

Services

Interested parties are invited to make their own enquiries to the relevant authorities as to the availability of the services.

Local Authority

South Lakeland District Council

Solicitors

Poole Townsend Estate Agents, 2 Market Place, Ref: Daniel Hutton, Tel: 01539 734455

Offered in association with

Poole Townsend

Important Notice to Prospective Buyers:

We draw your attention to the Special Conditions of Sale within the Legal Pack, referring to other charges in addition to the purchase price which may become payable. Such costs may include Search Fees, reimbursement of Sellers costs and Legal Fees, and Transfer Fees amongst others.

Additional Fees

Administration Charge - £1200 inc VAT payable on exchange of contracts.

Disbursements - Please see the legal pack for any disbursements listed that may become payable by the purchaser on completion.

View Larger Map

Disclaimer: The map preview provided above is for general guidance only and may not accurately reflect the exact location or surrounding buildings. Prospective buyers and interested parties are strongly advised to independently verify the precise location and surroundings before bidding.