For Sale By Auction | 12:00, 03 April 2025 | Lot 43

Low Mouthlock Barn, Barras, (known as Skyfall Barn), Kirkby Stephen, Cumbria CA17 4ET

Sold £216,000

  • Barn Conversion
  • 3 Bedrooms
  • Tenure: See Legal Pack

Call the team on 01228 510 552 for more information

Auction Date

Thu 03/04/2025

Auction Time

12:00

Auction Venue

The Halston Hotel, 20-34 Warwick Road • CA1 1AB

Stone Barn with planning for conversion in a stunning rural location.

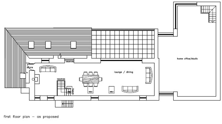
A traditional, detached stone barn with full planning for a four bedroom dwelling. Situated in a stunning rural location with panoramic views over the moors and fells. There is easy access to the North and South via the A66, Kirkby Stephen only 7 miles away and the historic market town of Barnard Castle 14 miles, this location would make an ideal investment for a home owner or investor as a holiday let, once the renovations were complete. The plans include an open plan living dining space to the first floor, to enjoy the stunning views. With bedrooms Bedrooms, bathrooms, kitchen and utility room to the ground floor. Garage, office/studio attached. Building Control have confirmed that work has commenced and the status of the Building Regulations application is live.

Tenure

See Legal Pack

what3words ///impulsive.evolution.juror

Westmorland and Furness Planning Reference

17/0101 18/0122 with variation of condition 2 21/0203 with variation of condition 2

Broadband

Broadband cable provided by 'B4RN' has been installed up to gate, ready for connection.

Services

Interested parties are invited to make their own enquiries to the relevant authorities as to the availability of the services.

Local Authority

Westmorland and Furness Council

Solicitors

Read Roper & Read Solicitors, Ref: Andrew Kay, Tel: 0161 832 6905

Important Notice to Prospective Buyers:

We draw your attention to the Special Conditions of Sale within the Legal Pack, referring to other charges in addition to the purchase price which may become payable. Such costs may include Search Fees, reimbursement of Sellers costs and Legal Fees, and Transfer Fees amongst others.

Additional Fees

Administration Charge - £1200 inc VAT payable on exchange of contracts.

Disbursements - Please see the legal pack for any disbursements listed that may become payable by the purchaser on completion.

View Larger Map

Disclaimer: The map preview provided above is for general guidance only and may not accurately reflect the exact location or surrounding buildings. Prospective buyers and interested parties are strongly advised to independently verify the precise location and surroundings before bidding.