For Sale By Auction | 12:00, 17 July 2025 | Lot 41

Sphera Antiques , King Street, Workington, Cumbria CA14 4DL

Sold £66,000

  • Commercial Development
  • Tenure: See Legal Pack

Call the team on 01228 510 552 for more information

Auction Date

Thu 17/07/2025

Auction Time

12:00

Auction Venue

The Halston Hotel, 20-34 Warwick Road • CA1 1AB

Viewing Times:

Sun 22 Jun

13:00-13:30

Sun 29 Jun

14:00-14:30

Sun 6 Jul

11:00-11:30

Fri 11 Jul

11:00-11:30

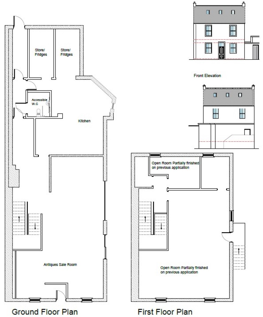
Commercial development property

A substantial, detached commercial property situated close to the town centre. The intention was to operate it as a restaurant however it is suitable for a variety of uses subject to planning. Interested parties should make their own enquiries to Cumberland Council regarding their proposed use.

Tenure

See Legal Pack

What3words location ///clever.wiring.flap

Ground Floor

Large Main Room 39'3 deep x 24'3 max width, 14'6 min width Rear Kitchen and Prep Room Two large Stores

First Floor

Main Front Room 30'6 deep x 25'3 max width, 17' min width Various rear Rooms

Services

Interested parties are invited to make their own enquiries to the relevant authorities as to the availability of the services.

Local Authority

Cumberland Council

Important Notice to Prospective Buyers:

We draw your attention to the Special Conditions of Sale within the Legal Pack, referring to other charges in addition to the purchase price which may become payable. Such costs may include Search Fees, reimbursement of Sellers costs and Legal Fees, and Transfer Fees amongst others.

Additional Fees

Administration Charge - 1.2% inc VAT of the purchase price, subject to a minimum of £1500 inc VAT, payable on exchange of contracts.

Disbursements - Please see the legal pack for any disbursements listed that may become payable by the purchaser on completion.

View Larger Map

Disclaimer: The map preview provided above is for general guidance only and may not accurately reflect the exact location or surrounding buildings. Prospective buyers and interested parties are strongly advised to independently verify the precise location and surroundings before bidding.