Withdrawn | Lot 28

Flat 4, 8 Kent Street, Kendal, Cumbria LA9 4AT

Withdrawn

  • Flat
  • 2 Bedrooms
  • Tenure: Leasehold. 999 years from 2017

Call the team on 01228 510 552 for more information

Auction Date

Thu 11/09/2025

Auction Time

12:00

Auction Venue

The Halston Hotel, 20-34 Warwick Road • CA1 1AB

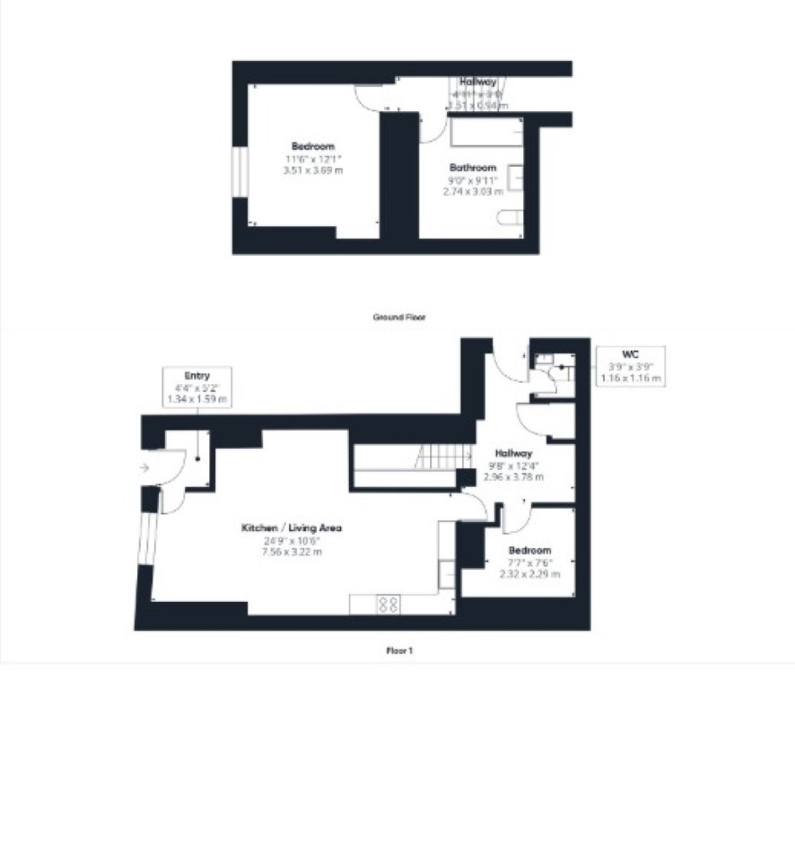
One bedroom town centre flat

A well presented flat situated in the market town of Kendal. Conveniently located, residents will have easy access to the town's amenities and transportation services, as well as quick road links to the M6 Motorway and the stunning landscapes of the Lake District National Park. Comprises: hall, kitchen/living area and bedroom to the ground floor, bedroom and bathroom to the lower ground floor.

Tenure

Leasehold. 999 years from 2017

Hall

Kitchen/ Living Area 24'9 x 10'6

Bedroom 7'7 x 7'6

Inner Hall Way

with WC and stairs to the Lower Ground Floor

Bedroom 11'6 x 12'1

Bathroom 9' x 9'11

Leasehold Tenure

999 years from 2017

Viewing

To view, please call Thomson Hayton Winkley on 01539 815700

Energy Efficiency Rating (EPC)

Current Rating D

Services

Interested parties are invited to make their own enquiries to the relevant authorities as to the availability of the services.

Local Authority

Westmorland and Furness Council

Solicitors

Renshaw Solicitors, Ref: Nicholas Renshaw, Tel: 01539 740666

Offered in association with

Thomson Hayton Winkley

Important Notice to Prospective Buyers:

We draw your attention to the Special Conditions of Sale within the Legal Pack, referring to other charges in addition to the purchase price which may become payable. Such costs may include Search Fees, reimbursement of Sellers costs and Legal Fees, and Transfer Fees amongst others.

Additional Fees

Administration Charge - 1.2% inc VAT of the purchase price, subject to a minimum of £1500 inc VAT, payable on exchange of contracts.

Disbursements - Please see the legal pack for any disbursements listed that may become payable by the purchaser on completion.

View Larger Map

Disclaimer: The map preview provided above is for general guidance only and may not accurately reflect the exact location or surrounding buildings. Prospective buyers and interested parties are strongly advised to independently verify the precise location and surroundings before bidding.