For Sale By Auction | 12:00, 10 December 2025 | Lot 37

34 Lowther Street, Whitehaven, Cumbria CA28 7JS

*Guide | £150,000 (plus fees)

  • Residential Development
  • 8 Bedrooms
  • Tenure: See Legal Pack

Call the team on 01228 510 552 for more information

Auction Date

Wed 10/12/2025

Auction Time

12:00

Auction Venue

The Halston Hotel, 20-34 Warwick Road • CA1 1AB

Viewing Times:

Sat 22 Nov

11:00-11:30

Tue 25 Nov

11:00-11:30

Sat 6 Dec

11:00-11:30

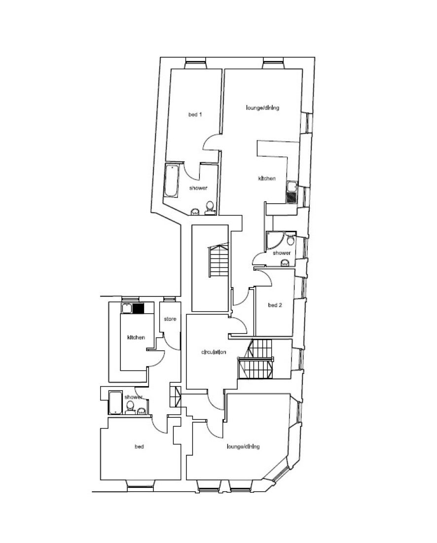
Residential investment property in town centre

The upper three floors of a prominent property on the corner of King Street and Lowther Street in the town centre close to the harbour and with Costa coffee shop on the ground floor. There is a newly converted two bedroomed apartment on the top floor and planning has been granted by Cumberland Council (ref 4/22/2293/0F1) for four self contained apartments on the first and second floors.

Tenure

See Legal Pack

Services

Interested parties are invited to make their own enquiries to the relevant authorities as to the availability of the services.

Local Authority

Cumberland Council

Solicitors

Priority Law, Ref: Francesca Goga, Tel: 0161 2077600

Important Notice to Prospective Buyers:

We draw your attention to the Special Conditions of Sale within the Legal Pack, referring to other charges in addition to the purchase price which may become payable. Such costs may include Search Fees, reimbursement of Sellers costs and Legal Fees, and Transfer Fees amongst others.

Additional Fees

Buyer's Premium - £1200 inc VAT payable on exchange of contracts.

Administration Charge - 1.2% inc VAT of the purchase price, subject to a minimum of £1500 inc VAT, payable on exchange of contracts.

Disbursements - Please see the legal pack for any disbursements listed that may become payable by the purchaser on completion.

View Larger Map

Disclaimer: The map preview provided above is for general guidance only and may not accurately reflect the exact location or surrounding buildings. Prospective buyers and interested parties are strongly advised to independently verify the precise location and surroundings before bidding.